Mirag Logo MIRAG CONSULTING D.O.O.

Дома и квартиры доступные для покупки в Андорре

Строим ваше будущее в центре Европы

← Назад к каталогу

Chalet for sale in L'Aldosa de la Massana with 4 bedrooms

  • Город: Andorra
  • Район: Aldosa
  • Площадь дома: 647 м2
  • Спален: 4
  • Ванных: 5
  • Стоимость: € 4 500 000

Дополнительные свойства: Вид на море

647 m 2, 4 Habitacions, 5 Banys, Inclòs

Новый исключительный дом с панорамными видами на Ла-Масана расположен в престижном районе Л'Алдоса в Ла-Масана. Этот великолепный индивидуальный дом в стадии строительства предлагает непревзойденное качество жизни, где природа, солнечный свет и четкие виды соединяются, чтобы создать спокойную и изысканную жилую среду. Уникальная недвижимость, построенная на участке в 427 м², предлагает 527 м² жилой площади, с использованием высококачественных материалов и тщательно продуманных отделок, которые сочетают аутентичность традиционной архитектуры с комфортом современного дизайна. Планируемая сдача летом 2026 года.

Дом оснащен современной звуко- и теплоизоляцией как внутри, так и снаружи. Каменный фасад и полы из натурального дерева придают элегантность, а тепловой насос обеспечивает приятную температуру в любое время года, в дополнение к системе кондиционирования. Этаноловый камин добавляет современное теплое и уютное ощущение в жилой интерьер дома.

Состоящий из четырех спален со своими ванными комнатами, частного сада и панорамных видов на величественные горы княжества, этот дом спроектирован для обеспечения комфортного стиля жизни, основанного на спокойствии и наслаждении природой. Оптимальная ориентация дома гарантирует исключительное естественное освещение на протяжении всего дня, создавая светлые, уютные и теплые пространства.

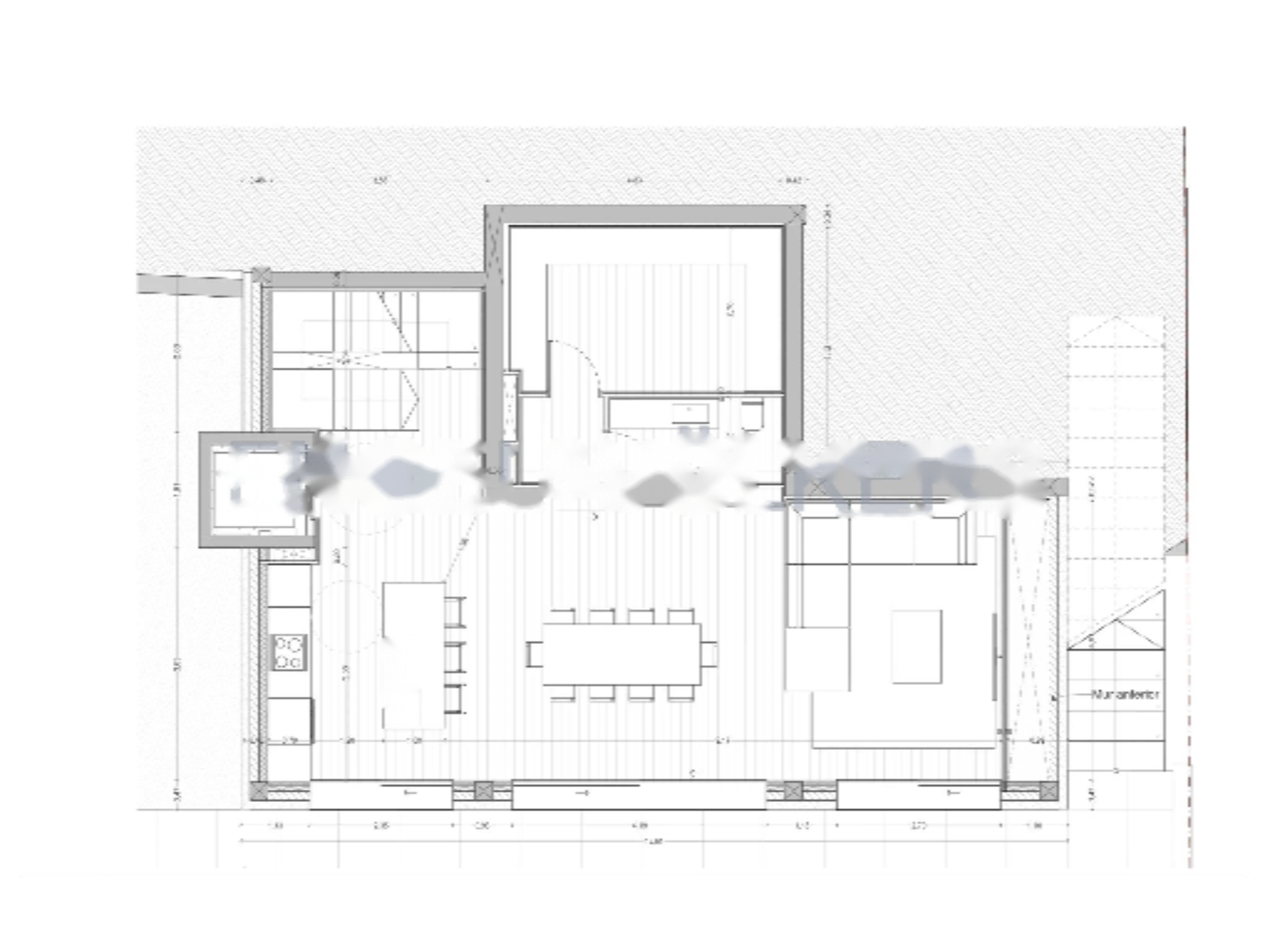
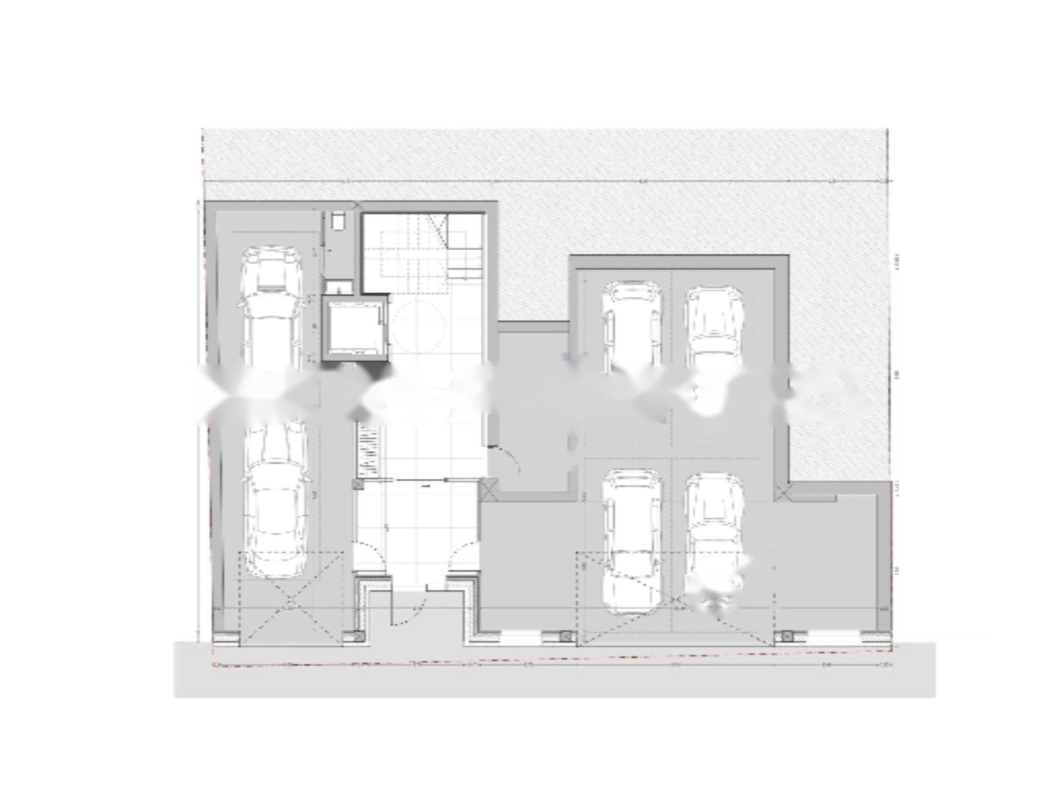
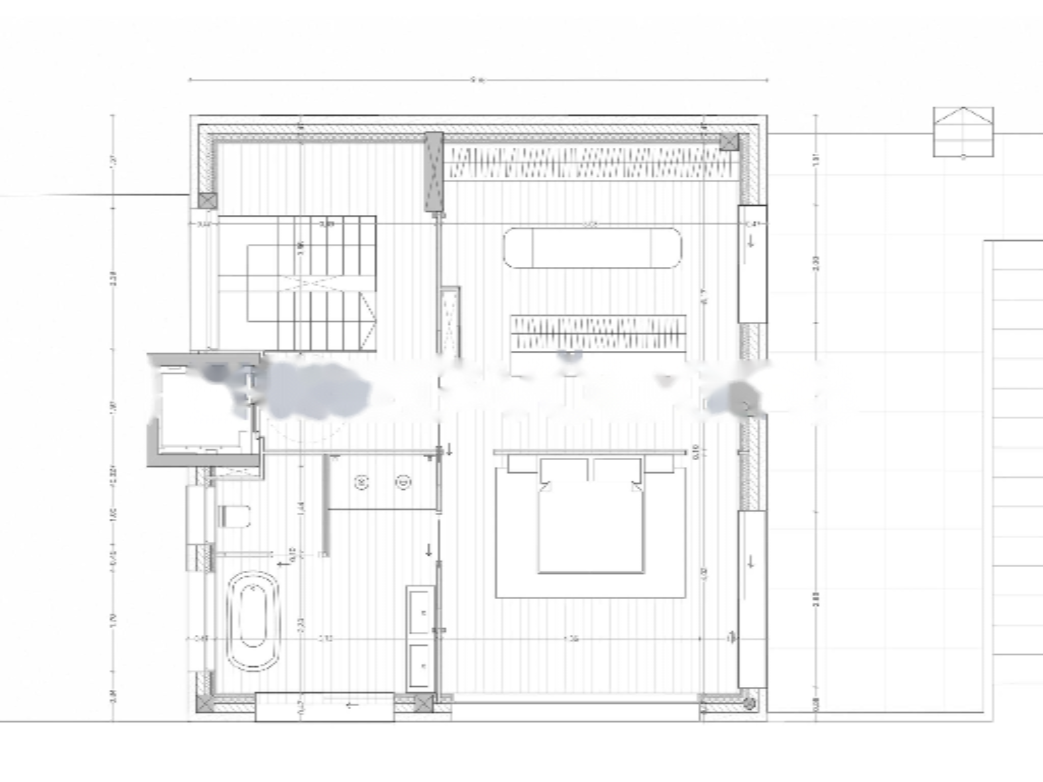
Дом организован на четырех уровнях, каждый из которых тщательно спроектирован для сочетания функциональности, комфорта и гармонии. На первом этаже (208 м²) размещен просторный вестибюль, два закрытых гаража на 6 автомобилей. На первом уровне (114 м²) находится главная жилая зона с открытой кухней, столовой и гостиной, полный света, камин способствует отдыху и уюту. Поставленные от пола до потолка окна обеспечивают обилие света и выход на большую террасу, где можно насладиться закатом. Также есть гостевой туалет и прачечная.

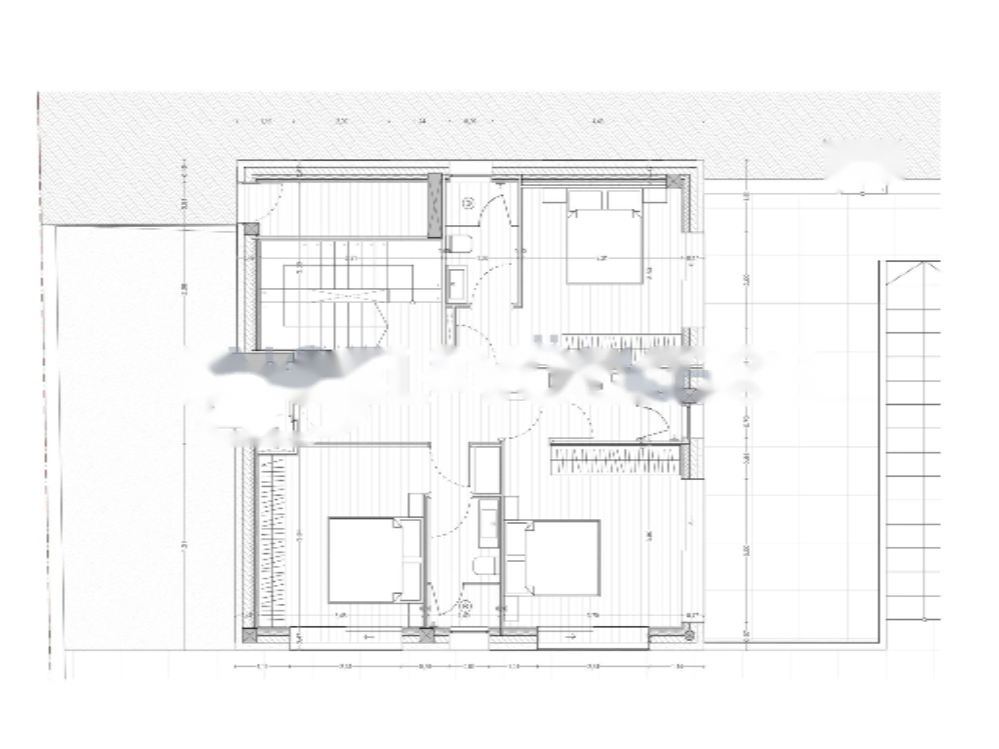
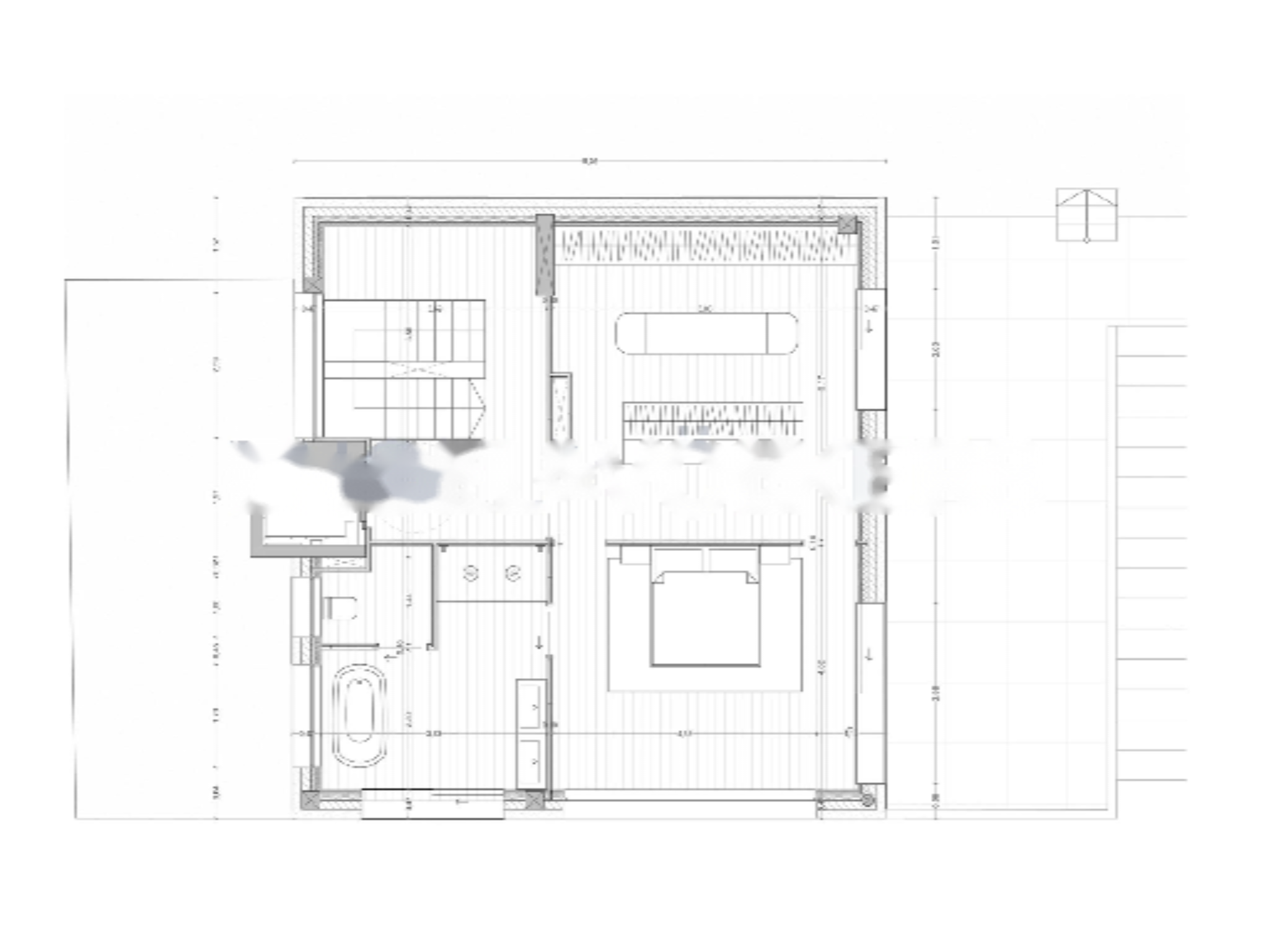
На втором уровне (110 м²) находятся три спальни с ванными комнатами, каждая со встроенными шкафами. Две спальни имеют частные террасы с великолепными видами и максимальным солнечным освещением. Одна спальня имеет доступ в сад, где можно насладиться восходом солнца и природой. На третьем уровне (95 м²) полностью расположена великолепная главная спальня с ванной комнатой и гардеробной, где большие окна обеспечивают обилие естественного света и предлагают потрясающий вид на долину.

Этот дом создан для обеспечения оптимального комфорта для каждого члена семьи, сочетая современность, уединение и природное окружение, сохраняя все удобства в шаговой доступности. Это больше, чем просто дом: идеальное место для жизни для тех, кто стремится к спокойной и полноценной ежедневной жизни.

Л'Алдоса-де-ла-Масана: природа, спокойствие и качество жизни в двух шагах от всего. Л'Алдоса-де-ла-Масана, расположенная между Ла-Масана и Аньос, является одной из самых оцениваемых жилых зон страны. Окруженная природой, с ясными видами и гарантированным солнечным светом круглый год, она предлагает привилегированную обстановку для тех, кто ищет спокойствие, не отказываясь от комфорта. Присутствие поблизости международной школы L'Agora делает это месторасположение идеальным выбором для семей, стремящихся к качественному образованию в спокойной и безопасной среде.

О компании

MIRAG CONSULTING D.O.O. — это команда профессионалов с более чем 20-летним опытом. Мы предоставляем полный спектр услуг в области финансового консалтинга, инжиниринга и недвижимости в Словении. Наша команда из более чем 10 экспертов имеет все лицензии и сертификации.
Главные ценности: эффективность, прозрачность, индивидуальный подход.

Mirag Consulting

Контакты

Slovenia, Ljubljana, Likozarjeva ulica 3