Mirag Logo MIRAG CONSULTING D.O.O.

Квартиры доступные для покупки в центре Лондона район Челси

Строим ваше будущее в центре Европы

← Назад к каталогу

Blantyre Walk, Worlds End Estate

  • Город: London
  • Район: SW10
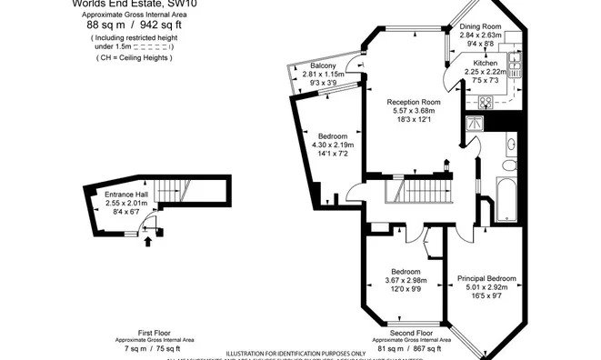
  • Площадь дома: 88 м2
  • Комнат: 5
  • Спален: 3
  • Ванных: 1
  • Стоимость: € 920 000

Инфраструктура: охраняемая территория, лифт

3 beds, 1 bath, 1 reception, EPC Rating: C

Этот хорошо обустроенный объект расположен на первом и втором этажах и предлагает замечательные виды на реку из гостиной и кухни-столовой, а также доступ на частный балкон. Он включает три спальни, гостиную с выходом на балкон, современную кухню-столовую и семейную ванную комнату. Кроме того, жители могут подать заявку на охраняемую парковку и получить разрешение на парковку в районе Королевского Боро Кенсингтон и Челси.

Апартамент предлагается как инвестиционная возможность с уже проживающими арендаторами, что обеспечивает годовой валовой доход в 5,2%. Blantyre Walk является частью комплекса Worlds End, где имеются общие сады, охрана и доступ в лифт, и это всего в нескольких шагах от Kings Road с его множеством магазинов, ресторанов и кафе.

О компании

MIRAG CONSULTING D.O.O. — это команда профессионалов с более чем 20-летним опытом. Мы предоставляем полный спектр услуг в области финансового консалтинга, инжиниринга и недвижимости в Словении. Наша команда из более чем 10 экспертов имеет все лицензии и сертификации.
Главные ценности: эффективность, прозрачность, индивидуальный подход.

Mirag Consulting

Контакты

Slovenia, Ljubljana, Likozarjeva ulica 3