Mirag Logo MIRAG CONSULTING D.O.O.
RU | EN

Квартиры доступные для покупки в центре Лондона район Челси

Строим ваше будущее в центре Европы

← Назад к каталогу

Dovehouse Street, Chelsea

  • Город: London
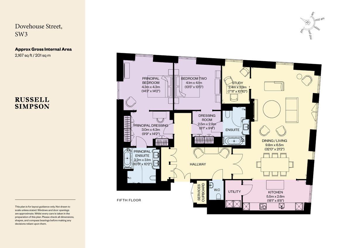
  • Район: SW3
  • Площадь дома: 201 m2
  • Комнат: 5
  • Спален: 2
  • Ванных: 2
  • Стоимость: € 9 142 500

Дополнительные свойства: Бассейн
Инфраструктура: фитнес-центр, бассейн, ресторан, салон красоты, консьерж, лифт

2 beds, 2 baths, 1 reception, 2,167 sq. ft, EPC Rating: B;

  • ✓ Кондиционирование воздуха
  • ✓ Общий бассейн

Комплекс Auriens Chelsea, предназначенный для людей старше 65 лет, предлагает роскошные удобства: тренажерный зал, бассейн длиной 15 метров, салон, сауну, кинозал, библиотеку, бар, ресторан и частный сад во внутреннем дворе, спроектированный отмеченным наградами дизайнером садов Энди Стерджоном.

Элегантное здание выполнено из лондонского кирпича и отражает георгианские пропорции окружающей архитектуры. Включает лифты, парковку с услугой парковщика и круглосуточный консьерж-сервис, а также услуги по уборке и техническому обслуживанию на территории для комфортного проживания.

Просторная и стильная квартира в уникальном комплексе рядом с King’s Road, предназначенная для лиц старше 65 лет. Находясь на пятом этаже, вас встречает прихожая, ведущая в просторную гостиную. В ней расположены зоны для обеда и отдыха, а также кухня открытой планировки с центральным островом. Из комнаты открывается доступ к прачечной и кабинету, а окна во всю длину и двойные створки заливают жилые пространства естественным светом.

Квартира включает две спальни, каждая из которых имеет гардеробные и ванные комнаты с ваннами. Главная спальня особенно просторна и также имеет двойные створки. Гостевой туалет и значительное пространство для хранения дополняют недвижимость.

Резиденция выполнена на высочайшем уровне: интерьеры сочетают классические и современные элементы дизайна, создавая изысканные и вечные комнаты. Включает высококачественный дубовый паркет в жилых зонах; мраморные столешницы, настенные плитки и душевые кабины в ванных; ручные шкафы и встроенную технику Miele на кухнях.

Включает также полы с подогревом, системы комфортного охлаждения и центральное управление освещением и температурой. Умные технологии, такие как моторизованные кухонные шкафы, а также утепленные стены и тройные стеклопакеты, обеспечивают атмосферу покоя и комфорта. Наконец, квартиры разработаны с участием специалистов в области здравоохранения, чтобы быть готовыми к будущим изменениям и легко адаптироваться при необходимости.

Удобно расположенный на Dovehouse Street, Auriens Chelsea соединяет King’s Road и Fulham Road, обеспечивая шаговую доступность к многочисленным ресторанам и магазинам района. Кроме того, мирового класса культурные заведения Челси и Саут-Кенсингтона находятся неподалеку на автомобиле.

О компании

MIRAG CONSULTING D.O.O. — это команда профессионалов с более чем 20-летним опытом. Мы предоставляем полный спектр услуг в области финансового консалтинга, инжиниринга и недвижимости в Словении. Наша команда из более чем 10 экспертов имеет все лицензии и сертификации.
Главные ценности: эффективность, прозрачность, индивидуальный подход.

Mirag Consulting

Контакты

Slovenia, Ljubljana, Likozarjeva ulica 3