Mirag Logo MIRAG CONSULTING D.O.O.

Квартиры доступные для покупки в центре Лондона район Челси

Строим ваше будущее в центре Европы

← Назад к каталогу

Burnaby Street, Chelsea

  • Город: London
  • Район: SW10
  • Площадь дома: 8 м2
  • Комнат: 3
  • Спален: 1
  • Ванных: 1
  • Стоимость: € 690 000

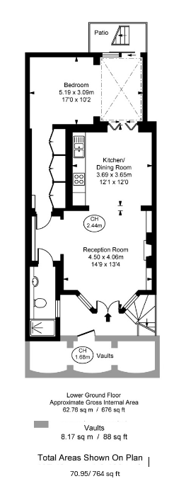
1 bed, 1 bath, 1 reception, EPC Rating: C

Прекрасно оформленная квартира с садом и отдельным входом, а также террасой-патио, находится в тихом районе Lots Village, популярном в Челси. Эта просторная и стильная квартира обладает исключительно удачной планировкой и естественным освещением. Выходя к собственному входу, она предлагает просторную гостиную с большими эркерными окнами и деревянным полом, а также современную открытую кухню с достаточным пространством для обеда. Двуспальная спальня расположена в задней части квартиры и включает в себя зону отдыха с выходом в сад. В дополнение имеется прилегающая гардеробная и современная ванная комната.

Район Lots Village находится в Королевском боро Кенсингтона и Челси и сохраняет дружелюбную и уютную атмосферу деревни, оставаясь всего в нескольких шагах от лучших достопримечательностей Челси. Магазины бутиков, кафе, рестораны и бары находятся рядом на King’s Road, а недавно обновленный район Chelsea Waterfront приносит обновленную энергию в этот район.

Отличные транспортные связи включают станцию Imperial Wharf Overground, частые местные автобусные маршруты и доступ к службе Uber Boat вдоль Темзы.

О компании

MIRAG CONSULTING D.O.O. — это команда профессионалов с более чем 20-летним опытом. Мы предоставляем полный спектр услуг в области финансового консалтинга, инжиниринга и недвижимости в Словении. Наша команда из более чем 10 экспертов имеет все лицензии и сертификации.
Главные ценности: эффективность, прозрачность, индивидуальный подход.

Mirag Consulting

Контакты

Slovenia, Ljubljana, Likozarjeva ulica 3