Mirag Logo MIRAG CONSULTING D.O.O.
RU | EN

Дома и квартиры доступные для покупки в Хорватии

Строим ваше будущее в центре Европы

← Назад к каталогу

Четырёхкомнатная квартира в Опатии

  • Город: Опатия
  • Район: Запад
  • Площадь дома: 176 m2
  • Комнат: 4
  • Спален: 3
  • Ванных: 2
  • Этаж: 2
  • Стоимость: € 626 000

Дополнительные свойства: Бассейн, Вид на море

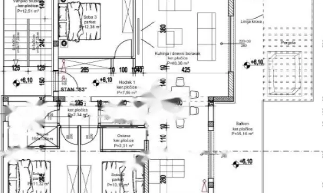
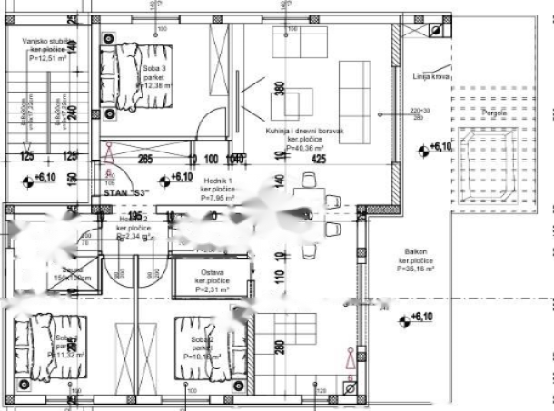
Представляем вашему вниманию эксклюзивный пентхаус в новостройке на последнем этаже здания, расположенный всего в 350 метрах от моря. Это уникальное жилье имеет отдельный вход через собственную лестницу, что обеспечивает максимальную приватность.

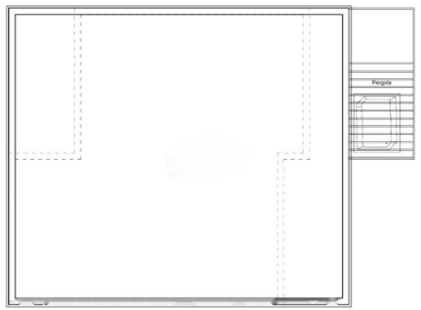
Общая площадь пентхауса составляет 176 м². Внутреннее пространство включает в себя просторную гостиную, совмещенную с кухней и обеденной зоной, три спальни, две ванные комнаты, два коридора, кладовую и крытый балкон площадью 35,16 м². Дополнительно, к пентхаусу относится большая крыша, размером 135,62 м², где предусмотрены установка перголы площадью около 30 м², зона для летней кухни с необходимыми коммуникациями, а также джакузи или бассейн. Это пространство превращает террасу в личный оазис для отдыха и общения с открытым видом на море.

Квартира оборудована системой напольного отопления, тепловым насосом и мультисплит-системами кондиционирования. Качественная внутренняя и внешняя отделка, выполненная по индивидуальному заказу, придает ей дополнительный элемент роскоши. В дополнение, к пентхаусу прилагаются два приватных парковочных места.

Площадь внутренних жилых помещений составляет 107,48 м², крытого балкона — 35,16 м², крытой террасы — 135,62 м², а самостоятельная лестница имеет площадь 12,51 м². Общая площадь двух парковочных мест составляет около 25 м². Окончание строительства планируется к концу 2026 года.

Этот пентхаус отличается своей величиной, функционалом, местоположением и качеством, представляя собой уникальную возможность и редкий объект на рынке недвижимости в данной части страны.

О компании

MIRAG CONSULTING D.O.O. — это команда профессионалов с более чем 20-летним опытом. Мы предоставляем полный спектр услуг в области финансового консалтинга, инжиниринга и недвижимости в Словении. Наша команда из более чем 10 экспертов имеет все лицензии и сертификации.
Главные ценности: эффективность, прозрачность, индивидуальный подход.

Mirag Consulting

Контакты

Slovenia, Ljubljana, Likozarjeva ulica 3