Mirag Logo MIRAG CONSULTING D.O.O.
RU | EN

Дома и квартиры доступные для покупки в Хорватии

Строим ваше будущее в центре Европы

← Назад к каталогу

Четырехкомнатная квартира Волоско

  • Город: Опатия
  • Район: Волоско
  • Площадь дома: 130 m2
  • Комнат: 4
  • Спален: 3
  • Ванных: 2
  • Год постройки: 2025
  • Этаж: 1
  • Стоимость: € 850 500

Дополнительные свойства: Вид на море
Инфраструктура: фитнес-центр, лифт

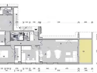
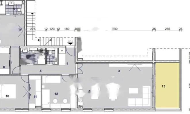
Предлагается к продаже современная квартира в живописном Волоцко. Общая площадь составляет 130 м², а продуманное планировочное решение обеспечит комфорт проживания. Данный объект расположен на первом этаже трехэтажного здания.

Квартира включает три спальни, гостевой туалет, две ванные комнаты, просторный холл, а также объединенное пространство кухни, столовой и гостиной с выходом на крытую террасу. Из окон открывается панорамный вид на море.

  • Площадь: 130 м²
  • Этажность здания: 3 этажей
  • Наличие лифта: Да
  • Балкон и терраса: Есть
  • Парковка: Одно место в гараже, два места на общем паркинге
  • Отопление: Индивидуальное, воздушное
  • Климатизация: Самостоятельная, охлаждение/обогрев

Строительство выполнено по высоким стандартам с использованием качественных материалов, в том числе алюминиевые оконные рамы и тепловые насосы. Для безопасности предусмотрено видеонаблюдение. Жители этого комплекса смогут воспользоваться общей тренажерной залой и зоной отдыха. В текущей стадии строительства возможна персонализация интерьера согласно вашим предпочтениям. Ожидаемый срок завершения работ — конец 2025 года. ⏱️

Объект расположен в Очаровательной Опатии, известного приморского курорта на Адриатическом море. Окружена уникальными природными красотами и величественной горой Учка, эта местность предлагает живописные виды на острова Крк и Црес. Район характеризуется богатой историей и архитектурой, включая великолепные викторианские виллы и исторические здания, а также многочисленные пляжи с чистейшей водой. ️

О компании

MIRAG CONSULTING D.O.O. — это команда профессионалов с более чем 20-летним опытом. Мы предоставляем полный спектр услуг в области финансового консалтинга, инжиниринга и недвижимости в Словении. Наша команда из более чем 10 экспертов имеет все лицензии и сертификации.
Главные ценности: эффективность, прозрачность, индивидуальный подход.

Mirag Consulting

Контакты

Slovenia, Ljubljana, Likozarjeva ulica 3