Mirag Logo MIRAG CONSULTING D.O.O.
RU | EN

Дома и квартиры доступные для покупки в Хорватии

Строим ваше будущее в центре Европы

← Назад к каталогу

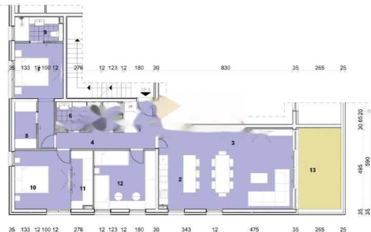
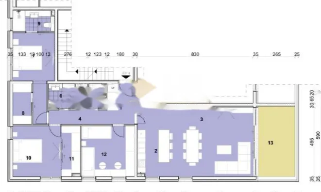
Четырехкомнатная квартира Волоцкие

  • Город: Опатия
  • Район: Побри
  • Площадь дома: 116 m2
  • Комнат: 4
  • Спален: 3
  • Ванных: 2
  • Год постройки: 2025
  • Этаж: 1
  • Стоимость: € 991 000

Дополнительные свойства: Вид на море
Инфраструктура: фитнес-центр

Предлагается роскошная квартира с великолепным видом на море . Новое строительство, площадью 116 кв.м, отличается высококачественной отделкой и удачной планировкой помещений.

Квартира включает в себя гостиную с открытой кухонной зоной и столовой, три спальни, ванную комнату, отдельный туалет, две гардеробные, коридор и крытую террасу. Обладатели жилья смогут насладиться всеми удобствами современного дома, включая возможности совместного использования спа-центра и тренажерного зала .

Жилье предусматривает одно место в гараже с индивидуальными воротами и два места на общем паркинге. Квартира оборудована алюминиевыми оконными конструкциями и системой теплового насоса, что обеспечивает энергосбережение и комфорт. Умные технологии позволяют управлять всеми устройствами через Wi-Fi со смартфона .

На текущем этапе строительства существует возможность адаптации интерьера в соответствии с вашими предпочтениями. Окончание работ запланировано на 2025 год, что предоставляет время для того, чтобы воплотить в жизнь ваши идеи и предпочтения по оформлению нового дома.

О компании

MIRAG CONSULTING D.O.O. — это команда профессионалов с более чем 20-летним опытом. Мы предоставляем полный спектр услуг в области финансового консалтинга, инжиниринга и недвижимости в Словении. Наша команда из более чем 10 экспертов имеет все лицензии и сертификации.
Главные ценности: эффективность, прозрачность, индивидуальный подход.

Mirag Consulting

Контакты

Slovenia, Ljubljana, Likozarjeva ulica 3