Mirag Logo MIRAG CONSULTING D.O.O.
RU | EN

Дома и квартиры доступные для покупки в Хорватии

Строим ваше будущее в центре Европы

← Назад к каталогу

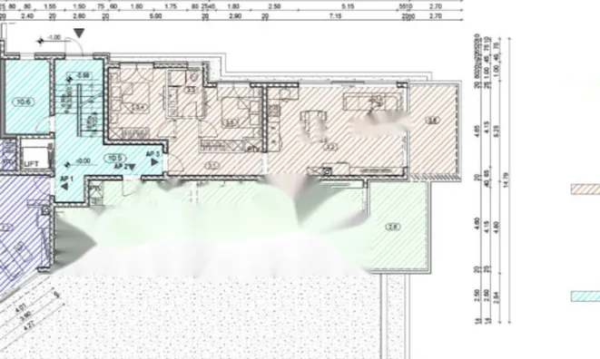
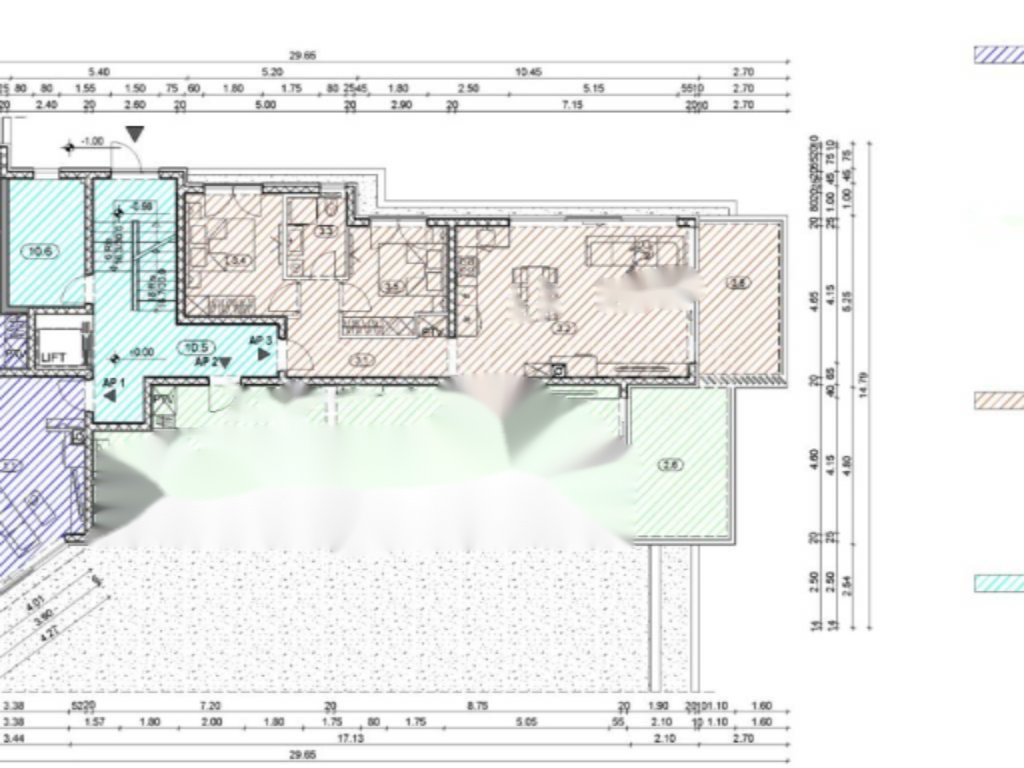
Трехкомнатная квартира в центре Опатии

  • Город: Опатия
  • Район: Центар
  • Площадь дома: 65 m2
  • Комнат: 3
  • Спален: 2
  • Ванных: 1
  • Год постройки: 2024
  • Стоимость: € 690 000

Дополнительные свойства: Вид на море
Инфраструктура: лифт

Продается квартира в новостройке в центре Опатии с общей площадью 65 м² и роскошным панорамным видом на море . Объект расположен на тихой улице, поблизости от всех необходимых удобств и в шаговой доступности от центра города. Южная ориентация квартиры с большими стеклянными окнами обеспечивает потрясающий вид на Кварнерский залив из всех комнат.

Квартира находится на третьем этаже здания и оборудована лифтом. Внутреннее пространство включает в себя просторную гостиную с выходом на террасу и балкон, кухню, две спальни, ванную комнату и прихожую. Общая площадь территории с участком составляет 91,54 м².

Здание, состоящее из 9 квартир, построено с использованием технологий по высоким стандартам: фасадная каменная вата толщиной 10 см, подогрев пола с тепловыми насосами, первоклассные алюминиевые окна. А также предусмотрены автономное воздушное отопление и кондиционирование.

В распоряжении будущих владельцев — одно место в гараже и два парковочных места на общей стоянке . Ожидается, что строительство завершится в начале 2025 года. Квартира предлагает современный комфорт и удобство в сочетании с прекрасными видами и близостью к историческим и культурным достопримечательностям Опатии.

О компании

MIRAG CONSULTING D.O.O. — это команда профессионалов с более чем 20-летним опытом. Мы предоставляем полный спектр услуг в области финансового консалтинга, инжиниринга и недвижимости в Словении. Наша команда из более чем 10 экспертов имеет все лицензии и сертификации.
Главные ценности: эффективность, прозрачность, индивидуальный подход.

Mirag Consulting

Контакты

Slovenia, Ljubljana, Likozarjeva ulica 3