Mirag Logo MIRAG CONSULTING D.O.O.
RU | EN

Дома и квартиры доступные для покупки в Хорватии

Строим ваше будущее в центре Европы

← Назад к каталогу

Трехкомнатная квартира в центре

  • Город: Опатия
  • Район: Центр
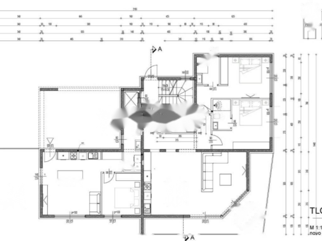
  • Площадь дома: 127 m2
  • Комнат: 3
  • Спален: 2
  • Ванных: 2
  • Год постройки: 2024
  • Стоимость: € 975 000

Инфраструктура: лифт

Предлагается современная квартира в самом центре Опатии, в новом жилом комплексе, состоящем из пяти высокостандартных квартир. Расположена в нескольких минутах ходьбы от моря — всего в 400 м .

Общая площадь квартиры составляет 127 м². Находится на первом этаже и включает в себя две спальни, просторную гостиную с кухней и столовой, две ванные комнаты, гардероб, кладовую/прачечную и дополнительный туалет. Великолепная терраса площадью 22,35 м² позволяет наслаждаться свежим морским воздухом, а принадлежащий участок размером 109,30 м² создает уникальное чувство уединенности .

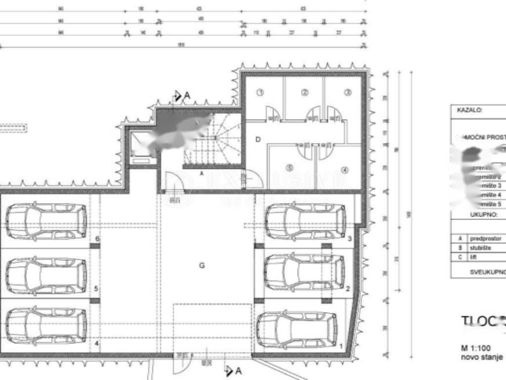
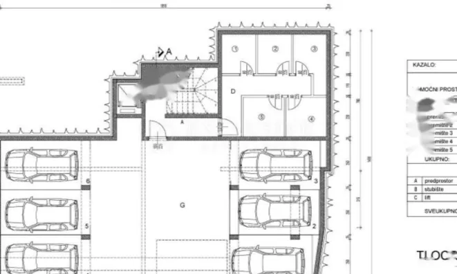
В комплектацию входит гаражное место и дополнительная сумка на подземном уровне. На общей парковке также предусмотрено дополнительное парковочное место . Новый жилой комплекс с лифтом состоит из трёх надземных этажей, включая современное оборудование и лучший уровень изоляции, гарантируя высокий стандарт проживания.

  • Управление: Система "умный дом".
  • Отопление и охлаждение: Комбинированная система на основе теплового насоса с фэнкойлами и полами с подогревом.
  • Окна: Алюминиевые конструкции с тройным остеклением и теплоизоляционной мембраной, отличная звукоизоляция.
  • Безопасность: Противовзломные и противопожарные входные двери.
  • Интерьер: Внутренние двери современного дизайна, высококачественные материалы, напольная и настенная керамика высокого качества, многослойный паркет с сертификатами для подогреваемых полов в спальнях.
  • Санитария: Современный дизайн от известных производителей.

Рядом с квартирой находятся все необходимые удобства для комфортного проживания. Окончание строительства запланировано на конец 2024 года.

О компании

MIRAG CONSULTING D.O.O. — это команда профессионалов с более чем 20-летним опытом. Мы предоставляем полный спектр услуг в области финансового консалтинга, инжиниринга и недвижимости в Словении. Наша команда из более чем 10 экспертов имеет все лицензии и сертификации.
Главные ценности: эффективность, прозрачность, индивидуальный подход.

Mirag Consulting

Контакты

Slovenia, Ljubljana, Likozarjeva ulica 3