Mirag Logo MIRAG CONSULTING D.O.O.
RU | EN

Дома и квартиры доступные для покупки в Хорватии

Строим ваше будущее в центре Европы

← Назад к каталогу

Квартира в центре Упатии

  • Город: Опатия
  • Район: Центр
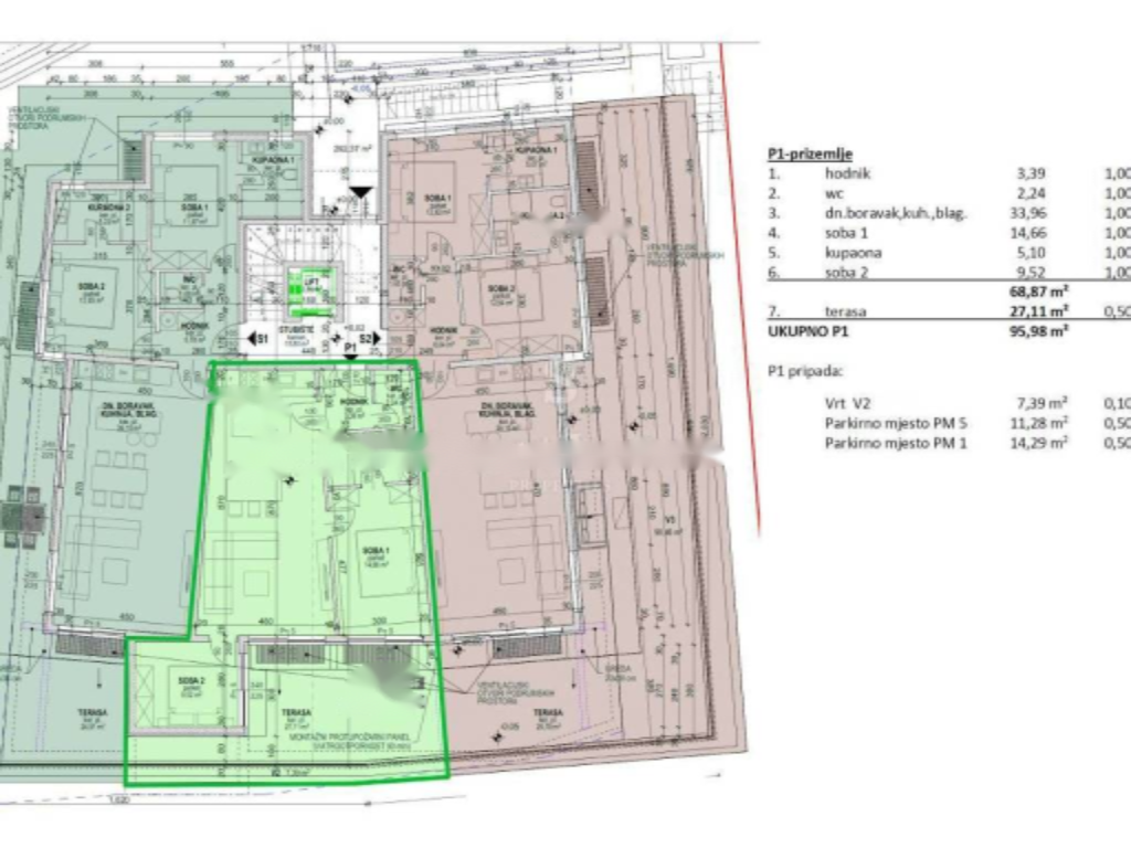
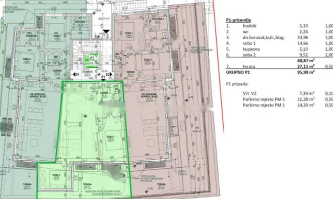
  • Площадь дома: 95 m2
  • Комнат: 3
  • Спален: 2
  • Ванных: 2
  • Год постройки: 2024
  • Этаж: 1
  • Стоимость: € 599 800

Дополнительные свойства: Бассейн, Вид на море
Инфраструктура: бассейн, лифт

Локация и общая информация: В Опатии, жемчужине Адриатики, представлен на продажу роскошный новый апартамент в современном жилом комплексе с бассейном. Расположенный в тихом районе возле моря и центра города, объект предлагает комфорт и уединение с панорамными видами на центр Опатии и море.

Описание апартамента: Апартамент состоит из двух спален с индивидуальными ванными, дополнительного санузла, просторной гостиной с кухней и столовой, а также террасы площадью 27,11 м². Общая жилплощадь составляет 95,22 м², а внутреннее пространство апартамента — 68,87 м². В комплектацию входят два гаражных места и небольшой сад площадью 7,39 м².

  • 2 спальни
  • 2 ванных комнаты
  • 1 гостевой туалет
  • Терраса (27,11 м²)
  • 2 гаражных места (11,28 м² и 14,29 м²)
  • Сад (7,39 м²)

Оборудование и удобства: Современная система кондиционирования и отопления (fan coil), высококачественные алюминиевые окна и электрические жалюзи, первоклассные санузлы и противовзломные двери. В здании имеется лифт и общий бассейн для расслабляющего отдыха.

Инфраструктура и окружение: Окруженная богатой историей и впечатляющей архитектурой, Опатия — идеальное место для жизни и отдыха. Близость к морю и различным удобствам делает жизнь здесь чрезвычайно комфортной и удобной.

Эта недвижимость предоставляет уникальную возможность насладиться роскошью и качеством жизни на побережье Адриатики.

О компании

MIRAG CONSULTING D.O.O. — это команда профессионалов с более чем 20-летним опытом. Мы предоставляем полный спектр услуг в области финансового консалтинга, инжиниринга и недвижимости в Словении. Наша команда из более чем 10 экспертов имеет все лицензии и сертификации.
Главные ценности: эффективность, прозрачность, индивидуальный подход.

Mirag Consulting

Контакты

Slovenia, Ljubljana, Likozarjeva ulica 3