Mirag Logo MIRAG CONSULTING D.O.O.
RU | EN

Дома и квартиры доступные для покупки в Хорватии

Строим ваше будущее в центре Европы

← Назад к каталогу

Новый дом в центре Опатии

  • Город: Опатия
  • Район: Центр
  • Площадь дома: 171 m2
  • Комнат: 4
  • Спален: 3
  • Ванных: 3
  • Год постройки: 2023
  • Этаж: 1
  • Стоимость: € 720 000

Дополнительные свойства: Бассейн, Вид на море
Инфраструктура: бассейн

Предлагается к продаже современный таунхаус с бассейном в тихом и живописном районе с видом на море в городе Опатия. Работы по завершению объекта планируется окончить в апреле 2024 года. Это место располагается на расстоянии всего 2 км от побережья и в 5 минутах езды до центра Опатии, что обеспечивает удобный доступ ко всем основным городским объектам.

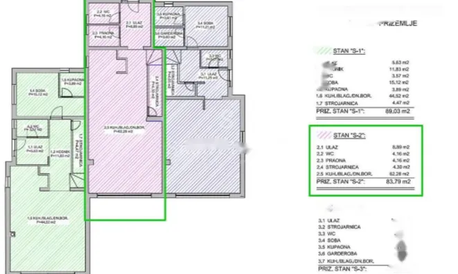
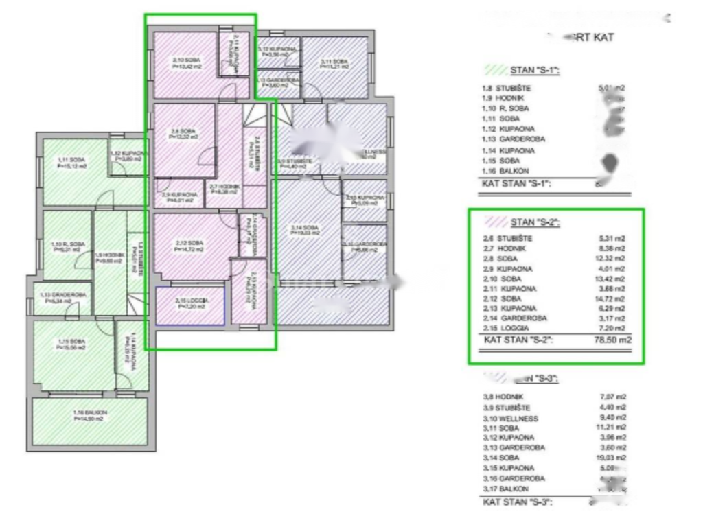
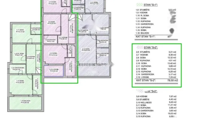
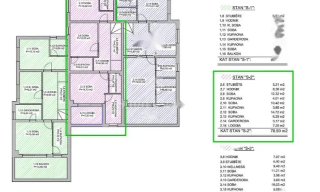
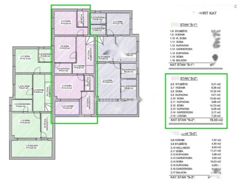
  • Площадь: 171 м² жилого пространства и 236 м² коммерческой площади. Общая полезная площадь составляет 157,58 м².
  • Спальные комнаты и ванные: 3 спальни и 3 ванные комнаты, а также дополнительный туалет.
  • Удобства: в доме предусмотрено подогрев полов с тепловым насосом Vaillant, кондиционирование и обогрев с системой Daikin, трояка паркет из дуба, первоклассная керамика, сантехника и арматура от Villeroy & Boсh и Grohe.
  • Энергетическая эффективность: объект имеет класс энергопотребления A и предусматривает подготовку для установки солнечной электростанции.
  • Окна и двери: алюминиевые и ПВХ оконные системы.
  • Парковочные места: 3 наружных парковочных места общей площадью 37,5 м² (каждое по 12,5 м²).
  • Двор: участок площадью 65,76 м².

На первом этаже дома находятся: входная зона, ванная комната, прачечная, техническое помещение, просторная гостиная с кухней и столовой. На втором этаже: лестница и холл, мастер-спальня с собственным санузлом и гардеробной, а также выходом на лоджию, и еще две спальни с ванными комнатами. Большое количество естественного света создает особую атмосферу тепла и уюта.

Удобное расположение в сочетании с высоким уровнем отделки делает этот объект привлекательным предложением для комфортной жизни в непосредственной близости от моря и инфраструктуры Опатии. ️

О компании

MIRAG CONSULTING D.O.O. — это команда профессионалов с более чем 20-летним опытом. Мы предоставляем полный спектр услуг в области финансового консалтинга, инжиниринга и недвижимости в Словении. Наша команда из более чем 10 экспертов имеет все лицензии и сертификации.
Главные ценности: эффективность, прозрачность, индивидуальный подход.

Mirag Consulting

Контакты

Slovenia, Ljubljana, Likozarjeva ulica 3