Mirag Logo MIRAG CONSULTING D.O.O.
RU | EN

Дома и квартиры доступные для покупки в Хорватии

Строим ваше будущее в центре Европы

← Назад к каталогу

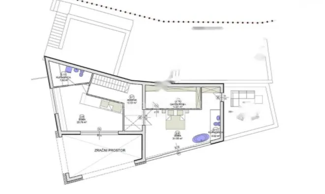
Четырёхкомнатная квартира Центр

  • Город: Опатия
  • Район: Центр
  • Площадь дома: 227 m2
  • Комнат: 4
  • Спален: 3
  • Ванных: 2
  • Этаж: 2
  • Стоимость: € 1 850 000

Дополнительные свойства: Вид на море
Инфраструктура: лифт

Предлагается на продажу эксклюзивный пентхаус в Опатии, обеспечивающий захватывающий панорамный вид на море. Этот современный двухуровневый пентхаус, площадью 227 м², расположен в новом доме на тихом и живописном участке, всего в 500 метрах от моря.

Новое жилье сочетает в себе современный дизайн и роскошную элегантность, создавая атмосферу уединения и комфорта. Большие панорамные окна открывают захватывающий вид на Адриатическое побережье, обеспечивая превосходное освещение и визуальное пространство.

На нижнем уровне расположены просторная гостиная с кухня-гостиной планировки, гостевой санузел с прачечной и спальня с собственной ванной комнатой. Гостиная соединена с просторной крытой террасой, обеспечивающей возможность наслаждаться отдыхом или гостеприимством.

Верхний уровень представлен мастер-спальней с остекленной ванной комнатой и гардеробной. Выход на террасу позволяет обустроить зону для отдыха или занятия спортом. На этом уровне также находится еще одна спальня с собственной ванной комнатой.

  • Три парковочных места гарантируют удобное хранение автомобилей.
  • ️ Отдельная система климат-контроля обеспечивает комфорт в любое время года.
  • Высококачественная отделка и мебель включены в стоимость.

Жилье оснащено передовыми технологиями и престижными брендами бытовой техники. Встроенные гардеробные позволяют максимизировать пространство.

Данная недвижимость демонстрирует собой один из наиболее серьезных предложений на рынке пентхаусов в Опатии и предоставляет возможность доработки крыши для создания бассейна.

О компании

MIRAG CONSULTING D.O.O. — это команда профессионалов с более чем 20-летним опытом. Мы предоставляем полный спектр услуг в области финансового консалтинга, инжиниринга и недвижимости в Словении. Наша команда из более чем 10 экспертов имеет все лицензии и сертификации.
Главные ценности: эффективность, прозрачность, индивидуальный подход.

Mirag Consulting

Контакты

Slovenia, Ljubljana, Likozarjeva ulica 3