Mirag Logo MIRAG CONSULTING D.O.O.
RU | EN

Дома и квартиры доступные для покупки в Хорватии

Строим ваше будущее в центре Европы

← Назад к каталогу

Трёхкомнатная квартира в центре

  • Город: Опатия
  • Район: Центар
  • Площадь дома: 112 m2
  • Комнат: 3
  • Спален: 2
  • Ванных: 2
  • Год постройки: 2024
  • Стоимость: € 706 200

Дополнительные свойства: Бассейн, Вид на море
Инфраструктура: бассейн, лифт

Представляем вашему вниманию уникальную возможность приобрести роскошный апартамент в Опатии, Хорватия. Этот современный двухкомнатный апартамент с гостиной находится в новостройке с бассейном и лифтом, расположенной в тихом районе рядом с центром города и морем.

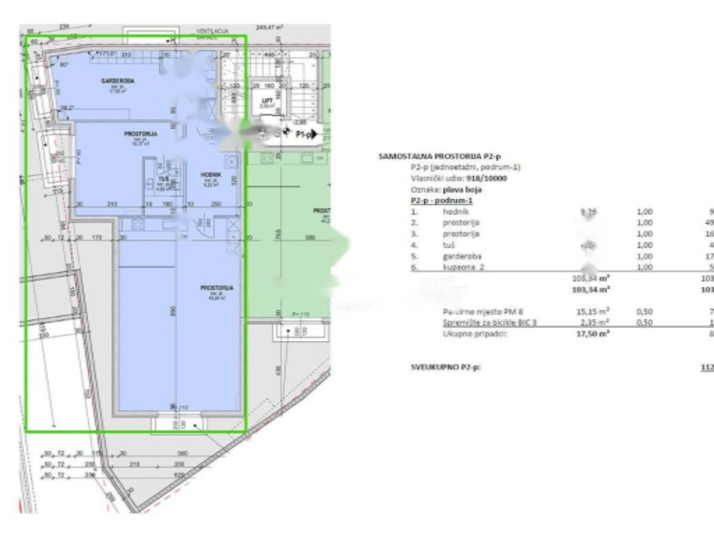
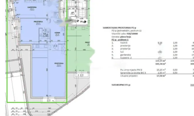
Общая площадь квартиры составляет 112.10 м², включая террасу. Внутреннее пространство размером 103.34 м² предоставляет две просторные спальни с собственными ванными комнатами, гостиную с кухней и столовой, а также отдельный туалет и холл. К апартаменту также прилагается гаражное место площадью 15.15 м² и удобное хранительное помещение площадью 2.35 м².

  • Самостоятельная система кондиционирования для энергоэффективного обогрева и охлаждения ❄️
  • Высококачественные алюминиевые окна
  • Электрические алюминиевые жалюзи
  • Элитная сантехника
  • Противовзломная входная дверь
  • Лифт и общий бассейн

Квартира выполнена в современном архитектурном стиле с использованием лучших материалов, что подчеркивает ее элегантность и роскошь. Из окон открывается захватывающий вид на центр Опатии и побережье Адриатического моря, что позволит вам наслаждаться великолепными панорамами каждый день.

Благодаря близости к морю, пляжам и необходимой инфраструктуре, вашему повседневному комфорту ничто не будет мешать. Опатия, известная как жемчужина Адриатики, привлекает своими природными красотами, богатой историей, архитектурой и современными удобствами, делая это место идеальным для жизни и отдыха.

О компании

MIRAG CONSULTING D.O.O. — это команда профессионалов с более чем 20-летним опытом. Мы предоставляем полный спектр услуг в области финансового консалтинга, инжиниринга и недвижимости в Словении. Наша команда из более чем 10 экспертов имеет все лицензии и сертификации.
Главные ценности: эффективность, прозрачность, индивидуальный подход.

Mirag Consulting

Контакты

Slovenia, Ljubljana, Likozarjeva ulica 3