Mirag Logo MIRAG CONSULTING D.O.O.
RU | EN

Дома и квартиры доступные для покупки в Хорватии

Строим ваше будущее в центре Европы

← Назад к каталогу

Трехкомнатная квартира в центре

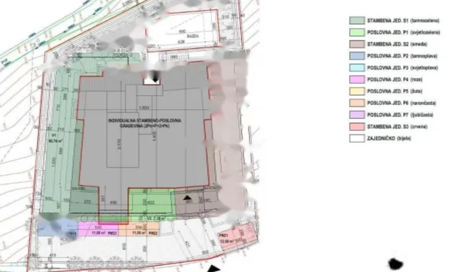
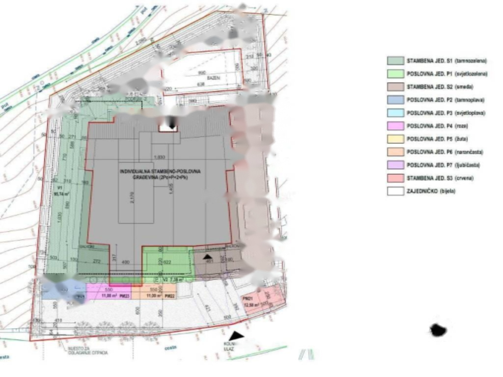
  • Город: Опатия
  • Район: Центар
  • Площадь дома: 108 m2
  • Комнат: 3
  • Спален: 2
  • Ванных: 2
  • Год постройки: 2024
  • Этаж: 1
  • Стоимость: € 686 500

Дополнительные свойства: Бассейн, Вид на море
Инфраструктура: бассейн, лифт

Предлагается к продаже роскошная квартира в новостройке с видом на море, расположенная в Опатии. Этот современный объект недвижимости предлагает великолепный дизайн, сочетая в себе элегантность и комфорт. Благодаря расположению в тихом районе, вы сможете наслаждаться уединением и спокойствием, а также невероятными видами на центр города и побережье Адриатического моря. ️

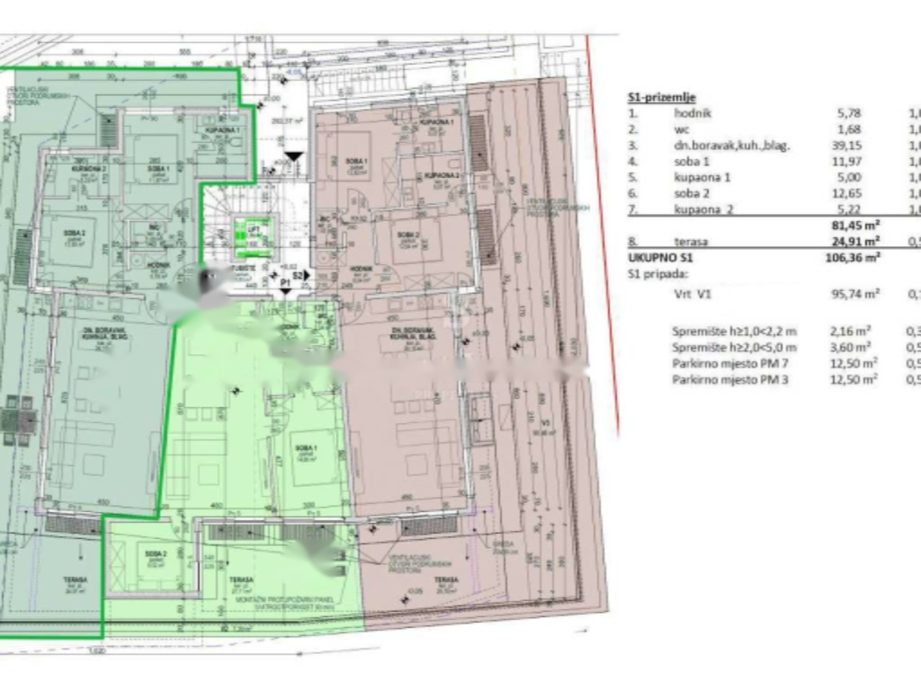
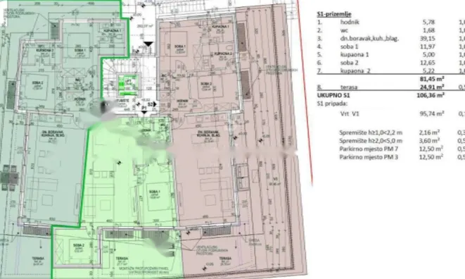
  • Общая площадь: 108,97 м²
  • Жилая площадь: 81,45 м²
  • Терраса: 24,91 м²
  • Внутренние помещения: две спальни с собственными ванными комнатами, гостиная, кухня, обеденная зона, дополнительные туалетные комнаты
  • Дополнительно: сад площадью 95,74 м²
  • Парковка: два гаражных места по 12,50 м² каждое
  • Хранение: два склада общей площадью 5,76 м²

Оснащение включает в себя систему климат-контроля Fan Coil для эффективного кондиционирования и отопления, алюминиевые окна и двери с электрическими ставнями, первоклассные санузлы и бронированную входную дверь. Комплекс оборудован лифтом и общим бассейном для жильцов. ‍♂️

Опатия, известная как жемчужина Адриатики, славится своей неповторимой красотой, богатой историей и современными удобствами, что делает её одним из самых востребованных мест для жизни и отдыха в Хорватии.

О компании

MIRAG CONSULTING D.O.O. — это команда профессионалов с более чем 20-летним опытом. Мы предоставляем полный спектр услуг в области финансового консалтинга, инжиниринга и недвижимости в Словении. Наша команда из более чем 10 экспертов имеет все лицензии и сертификации.
Главные ценности: эффективность, прозрачность, индивидуальный подход.

Mirag Consulting

Контакты

Slovenia, Ljubljana, Likozarjeva ulica 3