Mirag Logo MIRAG CONSULTING D.O.O.
RU | EN

Дома и квартиры доступные для покупки в Хорватии

Строим ваше будущее в центре Европы

← Назад к каталогу

Трехкомнатная квартира в центре

  • Город: Опатия
  • Район: Центар
  • Площадь дома: 97 m2
  • Комнат: 3
  • Спален: 2
  • Ванных: 2
  • Год постройки: 2024
  • Стоимость: € 605 500

Дополнительные свойства: Бассейн, Вид на море
Инфраструктура: бассейн, лифт

Элитный 2-комнатный апартамент с бассейном в Опатии предлагает современные удобства и уникальный стиль жизни. Расположенный на тихой улице рядом с морем и центром Опатии, этот апартамент обеспечивает первоклассный дизайн, элегантность и приватность. С балкона открывается прекрасный вид на центр Опатии и Адриатическое море .

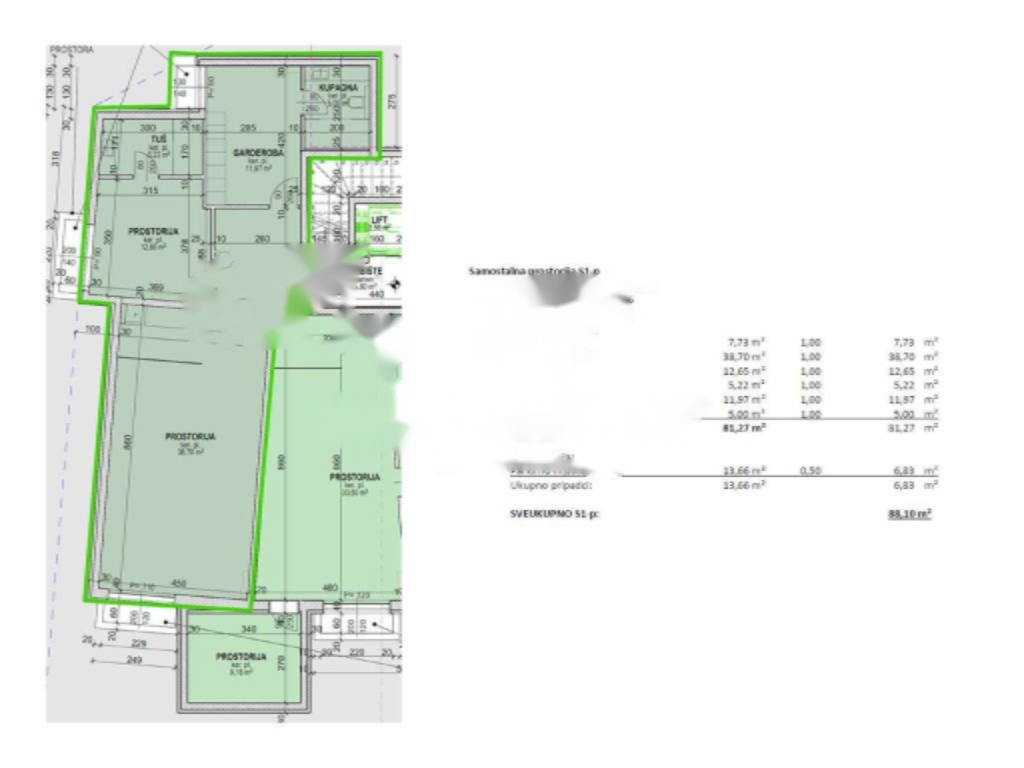
Апартамент площадью 97 м² включает в себя две спальни с собственными ванными комнатами, гостиную с кухней и столовой, а также просторную террасу площадью 95,74 м², где можно провести время с семьей и друзьями. Входной коридор и дополнительный санузел создают максимальный комфорт .

В стоимость входит гаражное место площадью 13,66 м², что значительно добавляет удобства в повседневной жизни . Здание оснащено современным лифтом и общим бассейном, что подчеркивает его высокий уровень.

  • Климат-контроль: независимая система охлаждения и отопления с фанкойлом для энергоэффективности
  • Окна и двери: алюминиевое остекление с электрическими жалюзи
  • Безопасность: входная дверь с системой противовзломной защиты
  • Ванные комнаты: высококачественные сантехнические изделия

Близость к морю, пляжам и всей необходимой инфраструктуре делает этот апартамент идеальным местом для жизни и отдыха. Опатия, жемчужина Адриатики, известна своей природной красотой, богатой историей и современной архитектурой, что делает её одной из самых привлекательных и востребованных локаций.

О компании

MIRAG CONSULTING D.O.O. — это команда профессионалов с более чем 20-летним опытом. Мы предоставляем полный спектр услуг в области финансового консалтинга, инжиниринга и недвижимости в Словении. Наша команда из более чем 10 экспертов имеет все лицензии и сертификации.
Главные ценности: эффективность, прозрачность, индивидуальный подход.

Mirag Consulting

Контакты

Slovenia, Ljubljana, Likozarjeva ulica 3