Mirag Logo MIRAG CONSULTING D.O.O.
RU | EN

Дома и квартиры доступные для покупки в Хорватии

Строим ваше будущее в центре Европы

← Назад к каталогу

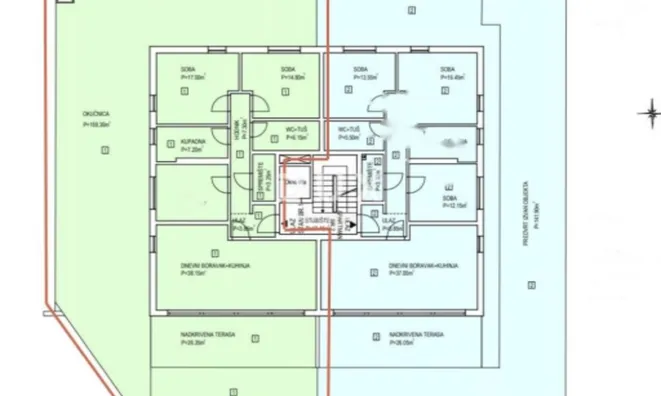
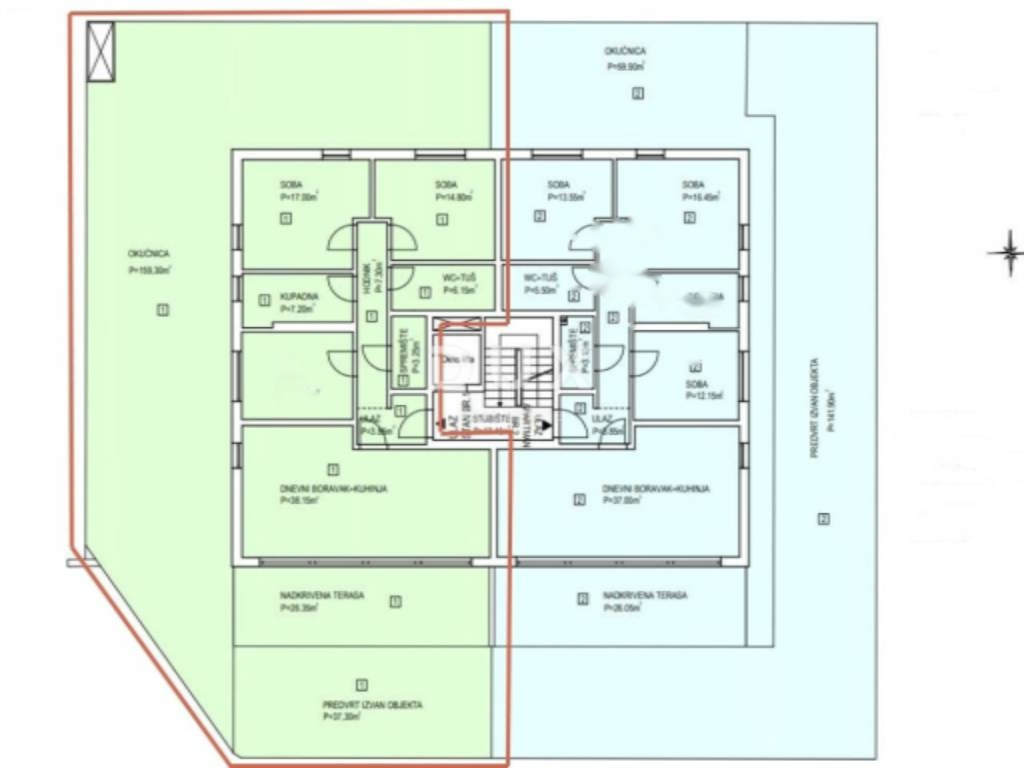
Четырехкомнатная квартира в центре Опатии

  • Город: Опатия
  • Район: Центр
  • Площадь дома: 118 m2
  • Комнат: 4
  • Спален: 3
  • Ванных: 2
  • Этаж: 1
  • Стоимость: € 750 000

Дополнительные свойства: Вид на море
Инфраструктура: лифт

Предлагается роскошный новый апартамент в центре Опатии, с панорамным видом на море и гаражом. Площадь квартиры составляет 118 м², к ней прилагаются два парковочных места в гараже и хозяйственные помещения, общая площадь по документам — 273,77 м².

Квартира предлагает три просторные спальни и просторный открытый план с гостиной, кухней и столовой. Большие окна наполняют пространство естественным светом и создают уютную атмосферу для отдыха и встреч с близкими. Из гостиной открывается впечатляющий вид на море.

Связь с внешним миром обеспечивают балкон и просторная открытая терраса, идеальное место для расслабления и наслаждения чистым воздухом. Комплекс оснащен лифтами и системой отопления и кондиционирования воздуха, включая подогрев пола, что добавит комфорта вашему проживанию. ☀️

В квартире установлены электрические ролеты и элитный паркет, а в ванных комнатах используется итальянская керамика. За безопасность и оптимальное использование пространства отвечают два гаражных парковочных места и подсобные помещения.

Расположение на тихой улице, окруженной зелеными пейзажами Учки и всего в 500 метрах от моря, открывает возможности как для пеших прогулок до пляжа за 10 минут или двухминутной поездки на автомобиле. ☁️‍♂️

Это редкая возможность для тех, кто ценит современную архитектуру и комфорт в одном из самых престижных районов Опатийской Ривьеры.

О компании

MIRAG CONSULTING D.O.O. — это команда профессионалов с более чем 20-летним опытом. Мы предоставляем полный спектр услуг в области финансового консалтинга, инжиниринга и недвижимости в Словении. Наша команда из более чем 10 экспертов имеет все лицензии и сертификации.
Главные ценности: эффективность, прозрачность, индивидуальный подход.

Mirag Consulting

Контакты

Slovenia, Ljubljana, Likozarjeva ulica 3