Mirag Logo MIRAG CONSULTING D.O.O.
RU | EN

Дома и квартиры доступные для покупки в Хорватии

Строим ваше будущее в центре Европы

← Назад к каталогу

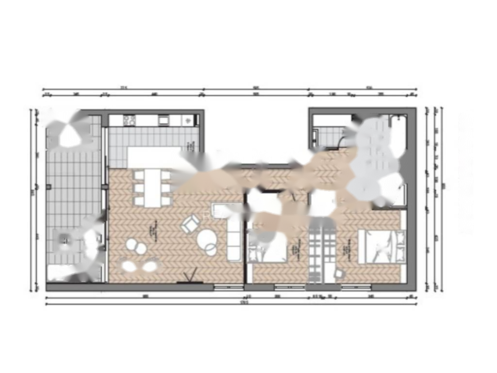
Трехкомнатная квартира в центре

  • Город: Опатия
  • Район: Центар
  • Площадь дома: 107 m2
  • Комнат: 3
  • Спален: 2
  • Ванных: 2
  • Год постройки: 2024
  • Стоимость: € 680 000

Дополнительные свойства: Вид на море
Инфраструктура: лифт

Представляем вашему вниманию эксклюзивную квартиру, расположенную в новой современной постройке в районе Опатии, с прекрасным видом и удобным доступом ко всем достопримечательностям города.

Эта просторная квартира площадью 107 м² находится на первом этаже и обладает отдельным входом. Внутреннее пространство включает в себя две спальни с индивидуальными ванными комнатами, а также великолепную открытую гостиную с обеденной зоной и кухней общей площадью 43 м². Особенностью квартиры является просторная терраса площадью 19 м² с джакузи, что создаёт идеальные условия для отдыхa на свежем воздухе.

Квартира оборудована собственными системами кондиционирования для охлаждения и обогрева, что обеспечит комфортное проживание в любое время года. В вашем распоряжении также будет одно гаражное место и кладовая площадью 2 м².

Расположенная всего в 250 метрах от моря, эта новая десятиэтажная постройка предлагает удобный доступ ко всем городским удобствам, включая знаменитую набережную Лунгомаре, центральный пляж, летнюю сцену и культурный центр Гервейс. Удобное местоположение позволяет насладиться отдыхом и активно проводить время на открытом воздухе.

Эта квартира представляет собой прекрасную возможность как для личного проживания, так и для инвестиции в туристический сегмент. ✨

О компании

MIRAG CONSULTING D.O.O. — это команда профессионалов с более чем 20-летним опытом. Мы предоставляем полный спектр услуг в области финансового консалтинга, инжиниринга и недвижимости в Словении. Наша команда из более чем 10 экспертов имеет все лицензии и сертификации.
Главные ценности: эффективность, прозрачность, индивидуальный подход.

Mirag Consulting

Контакты

Slovenia, Ljubljana, Likozarjeva ulica 3