Mirag Logo MIRAG CONSULTING D.O.O.
RU | EN

Дома и квартиры доступные для покупки в Хорватии

Строим ваше будущее в центре Европы

← Назад к каталогу

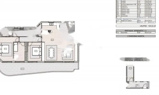
Четырехкомнатная квартира

  • Город: Опатия
  • Район: Центар
  • Площадь дома: 141 m2
  • Комнат: 4
  • Спален: 3
  • Ванных: 2
  • Этаж: 1
  • Стоимость: € 1 269 000

Дополнительные свойства: Вид на море
Инфраструктура: лифт

Предлагается просторная квартира площадью 141 м² с потрясающим видом на море, расположенная в центре Опатии. Находится на первом этаже современной здания, в которой используется инновационная архитектура, подчеркивающая качество строительства и комфорт проживания. В шаговой доступности от пляжей, магазинов и ресторанов, с гарантией уединенности от летних толп.

Квартира имеет:

  • Три спальни, включая мастер-спальню с гардеробом и большой ванной.
  • Три ванных комнаты и отдельный туалет.
  • Дневную зону: гостиная, столовая с выходом на просторный балкон.
  • Кухню и кладовую.
  • Сауна для вашего релакса.

В конструкцию здания входит гараж с высокими потолками и лифт, обеспечивающий доступ ко всем уровням. Квартира оснащена системой подогрева пола от DAIKIN, кондиционированием посредством теплового насоса, а также видео-домофоном и сигнализацией. Используется алюминиевая столярка Schüco с тройным затемненным стеклопакетом и электрическими приводами для жалюзи. Все балконы оборудованы стеклянными ограждениями современной конструкции, откуда открывается живописный вид на морское побережье и саму Опатию.

В распоряжении жильцов:

  • Два парковочных места в подземном паркинге.
  • Зарядная станция для электромобилей.
  • Собственное хранилище.

Квартира предлагается без мебели за исключением полностью оборудованных ванных комнат, и доступна для заселения весной 2026 года.

О компании

MIRAG CONSULTING D.O.O. — это команда профессионалов с более чем 20-летним опытом. Мы предоставляем полный спектр услуг в области финансового консалтинга, инжиниринга и недвижимости в Словении. Наша команда из более чем 10 экспертов имеет все лицензии и сертификации.
Главные ценности: эффективность, прозрачность, индивидуальный подход.

Mirag Consulting

Контакты

Slovenia, Ljubljana, Likozarjeva ulica 3