Mirag Logo MIRAG CONSULTING D.O.O.
RU | EN

Квартиры доступные для покупки в центре Лондона

Строим ваше будущее в центре Европы

← Назад к каталогу

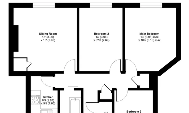
Robert Owen House, Bishop's Park

  • Город: London
  • Район: SW6
  • Площадь дома: 66 m2
  • Комнат: 5
  • Спален: 3
  • Ванных: 1
  • Стоимость: € 402 500

Просторная квартира с тремя спальнями находится на втором этаже, предлагая светлую гостиную и отдельную кухню, а также три просторные спальни и отличное расположение.

Fulham Palace находится в удобной части Фулхэма, рядом с Fulham Palace, Темзой, а также мостом Патни для различных удобств. Parsons Green — ближайшая станция для транспортных связей.

О компании

MIRAG CONSULTING D.O.O. — это команда профессионалов с более чем 20-летним опытом. Мы предоставляем полный спектр услуг в области финансового консалтинга, инжиниринга и недвижимости в Словении. Наша команда из более чем 10 экспертов имеет все лицензии и сертификации.
Главные ценности: эффективность, прозрачность, индивидуальный подход.

Mirag Consulting

Контакты

Slovenia, Ljubljana, Likozarjeva ulica 3