Mirag Logo MIRAG CONSULTING D.O.O.
RU | EN

Дома и квартиры доступные для покупки в Люксенбурге

Строим ваше будущее в центре Европы

← Назад к каталогу

Apartment 2 bedrooms for sale in Belval

  • Город: Luxembourg
  • Район: Belval
  • Площадь дома: 84 m2
  • Спален: 2
  • Ванных: 1
  • Этаж: 3
  • Стоимость: € 704 402

Инфраструктура: лифт

surface: 84 m², rooms: 2, bathrooms: 1, garages: 1

  • ✓ Этаж объекта: 3
  • ✓ Лифт: Есть
  • ✓ Год постройки: 2028
  • ✓ Отдельная кухня: Есть
  • ✓ Отдельные туалеты: 1
  • ✓ Энергетический класс: A
  • ✓ Класс теплоизоляции: A
  • ✓ Подвал: Есть
  • ✓ Прачечная: Есть

Резиденция Nest в Belval представляет собой новую современную и устойчивую жилую застройку, состоящую из 64 жилых единиц, магазинов и офисов в сердце Belval. Завершение проекта запланировано на конец 2028 года.

Здание класса AAA будет оснащено высокоэффективными рамами и остеклением, крышей с солнечными панелями нового поколения, городской фермой и системой переработки дождевой воды. Апартаменты NEST выделяются тщательной внутренней отделкой: плитка или паркет на выбор, стены с покраской Variovlies, качественные внутренние двери и ванные комнаты с сантехникой от Duravit, Villeroy & Boch и Hansgrohe. Комфорт дополняется теплым полом и системой двойной вентиляции, обеспечивающей здоровую и приятную атмосферу.

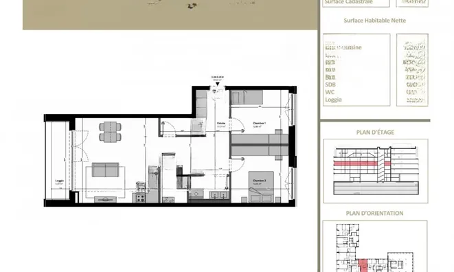
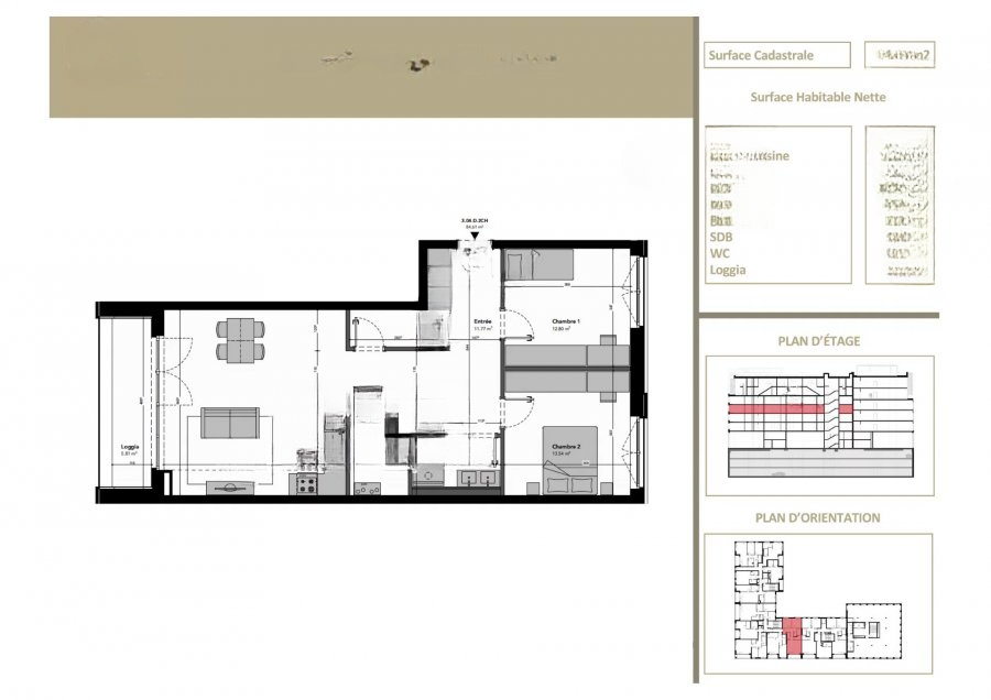
Апартамент Lot 3.04.D.2CH расположен на 3-м этаже и имеет кадастровую площадь ±84.43 м², лоджию ±5.75 м² и состоит из: гостиной/кухни площадью ±28.97 м² с большими панорамными окнами и выходом на террасу; 2 спальни: ±12.80 м² и ±13.54 м²; 1 душевая комната: ±4.41 м²; отдельный WC: ±2.48 м²; прачечная: ±4.04 м²; кладовая площадью ±3.08 м².

Идеально расположенная в сердце одного из самых инновационных районов на юге страны, смешанная жилая проектировка NEST Belval пользуется привилегированным местоположением, где полностью реализован принцип "15-минутного города". В Belval все необходимые места — магазины, рестораны, зеленые зоны, культурные учреждения, транспорт, досуг или услуги — находятся менее чем в 15 минутах ходьбы, предлагая редкое, плавное и идеально сбалансированное городское качество жизни.

Скорое прибытие скоростного трамвая, связывающего Belval с Люксембург-Сити, улучшит уже превосходную мобильность, дополняемую станцией Belval-University, расположенной всего в 450 метрах от резиденции и позволяющей добраться до центра Люксембурга за 20-25 минут.

У подножия NEST место будущей "Place des Bassins" станет подлинным живым сердцем: пешеходная зона с террасами, магазинами, событиями, зонами отдыха и ландшафтом, сочетающим воду и растительность — место, созданное для содействия социальным связям, активности и благополучию.

Район также предлагает непосредственный доступ к ряду основных инфраструктур: Parc Belval Nord, просторное зеленое пространство, идеальное для прогулок и активного отдыха, Rockhal, знаковая концертная площадка Люксембурга, Belval Plaza Shopping Center с магазинами, ресторанами и кинотеатром Kinepolis. Вдобавок, Belval — один из самых перспективных экономических центров страны, принимающий ведущие учреждения, такие как Société Générale Luxembourg, RBC Investor Services, Foyer, а также кампус университета Belval с его исследовательскими центрами. Эта динамичная и перспективная экосистема гарантирует устойчивую привлекательность и сильный потенциал роста.

О компании

MIRAG CONSULTING D.O.O. — это команда профессионалов с более чем 20-летним опытом. Мы предоставляем полный спектр услуг в области финансового консалтинга, инжиниринга и недвижимости в Словении. Наша команда из более чем 10 экспертов имеет все лицензии и сертификации.
Главные ценности: эффективность, прозрачность, индивидуальный подход.

Mirag Consulting

Контакты

Slovenia, Ljubljana, Likozarjeva ulica 3