Mirag Logo MIRAG CONSULTING D.O.O.
RU | EN

Дома и квартиры доступные для покупки в Люксенбурге

Строим ваше будущее в центре Европы

← Назад к каталогу

House 8 bedrooms for sale in Esch-sur-Alzette

  • Город: Luxembourg
  • Район: Esch-sur-Alzette
  • Площадь дома: 320 m2
  • Спален: 8
  • Ванных: 4
  • Стоимость: € 1 350 000

surface: 320 m², rooms: 8, bathrooms: 4, garages: 1

  • ✓ Земельный участок: 2 ares
  • ✓ Количество комнат: 20
  • ✓ Год постройки: 1931
  • ✓ Оборудованная кухня: Да
  • ✓ Отдельная кухня: Да
  • ✓ Отдельный туалет: 1
  • ✓ Внутренняя парковка: 1
  • ✓ Балкон: Да
  • ✓ Терраса: 5 m²
  • ✓ Сад: Да
  • ✓ Энергетический класс: G
  • ✓ Класс теплоизоляции: H
  • ✓ Газовое отопление: Да
  • ✓ Подвал: Да
  • ✓ Прачечная: Да

Объект для инвестиций (320 м²), включающий 3 квартиры и 1 дуплекс. Имеет хороший потенциал для реконструкции.

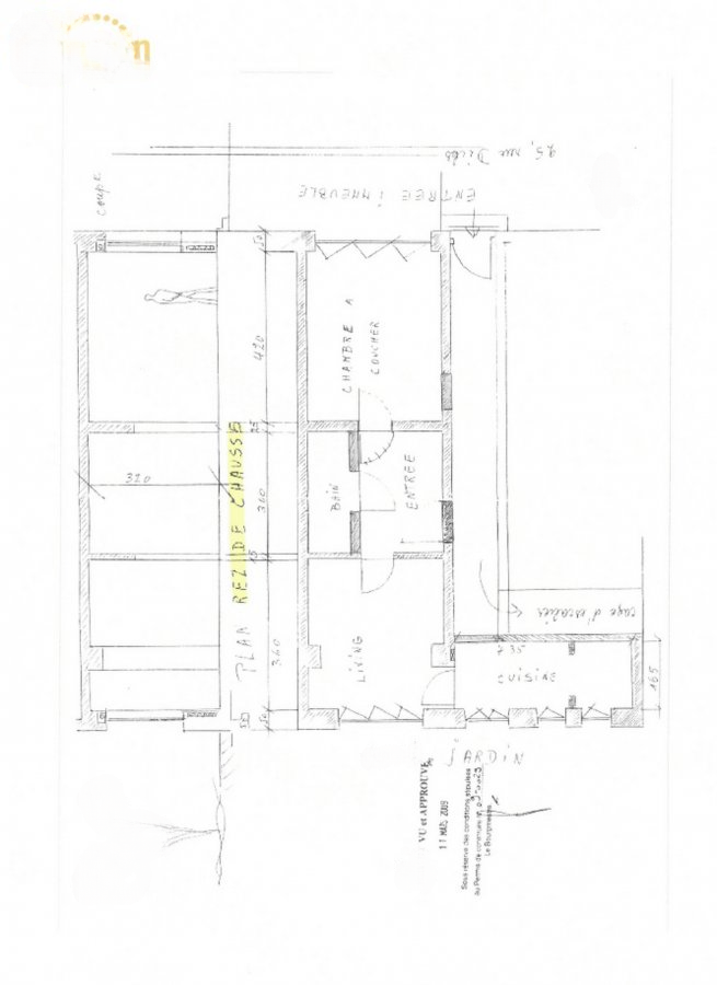
На первом этаже находится квартира с одной спальней (45 м²), включающая прихожую, гостиную, отдельную оборудованную кухню, спальню и душевую комнату.

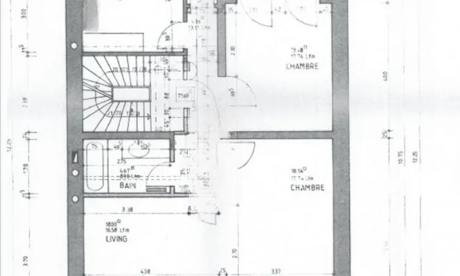
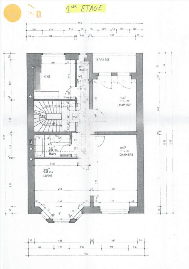
На втором этаже расположена двухкомнатная квартира (72 м²) с прихожей и гостевым туалетом, гостиной, отдельной оборудованной кухней с балконом, двумя спальнями и ванной комнатой.

Второй этаж (72 м²) включает прихожую с гостевым туалетом, гостиную, отдельную кухню, две спальни и ванную комнату.

На третьем и четвертом этажах находится дуплекс (118 м²), включающий прихожую, гостиную, отдельную оборудованную кухню, спальню и ванную комнату, а также наверху две спальни и отдельный туалет.

В подвале имеются 4 кладовые, общая прачечная и котельная. Сад и закрытый гараж завершают объект.

В настоящее время все 4 помещения сданы в аренду.

О компании

MIRAG CONSULTING D.O.O. — это команда профессионалов с более чем 20-летним опытом. Мы предоставляем полный спектр услуг в области финансового консалтинга, инжиниринга и недвижимости в Словении. Наша команда из более чем 10 экспертов имеет все лицензии и сертификации.
Главные ценности: эффективность, прозрачность, индивидуальный подход.

Mirag Consulting

Контакты

Slovenia, Ljubljana, Likozarjeva ulica 3