Mirag Logo MIRAG CONSULTING D.O.O.
RU | EN

Дома доступные для покупки до € 100 000

Строим ваше будущее в центре Европы

← Назад к каталогу

Дом, Завод, Судражица

  • Город: Содражица
  • Район: Юго-Восточная Словения
  • Площадь дома: 90 m2
  • Площадь участка: 642 m2
  • Комнат: 2
  • Спален: 1
  • Ванных: 2
  • Год постройки: 1850
  • Этаж: 2
  • Стоимость: € 86 800

Дополнительные свойства: Вид на море, Гольф, Альпы, Виноградница, Охота

На тихой окраине деревни Завода, в Содражице, расположена очаровательная одноэтажная усадьба с элементами старинного стиля, построенная в 1850 году. Площадь дома составляет 90 м², территория — 642 м². Внутренние пространства частично обновлены, включая электрическую проводку в 2019 году, крыша была заменена в 1979 году. Это уютное и атмосферное место ждет своих новых владельцев для завершения реставрации.

Дом примечателен наличием внешнего садового участка с огороженным садом и садом, расположенным на склоне позади дома. С обеих сторон дома открываются живописные виды на окрестности Содражицы на юго-запад. Вход возможен как с передней стороны, так и с восточной.

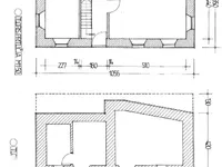
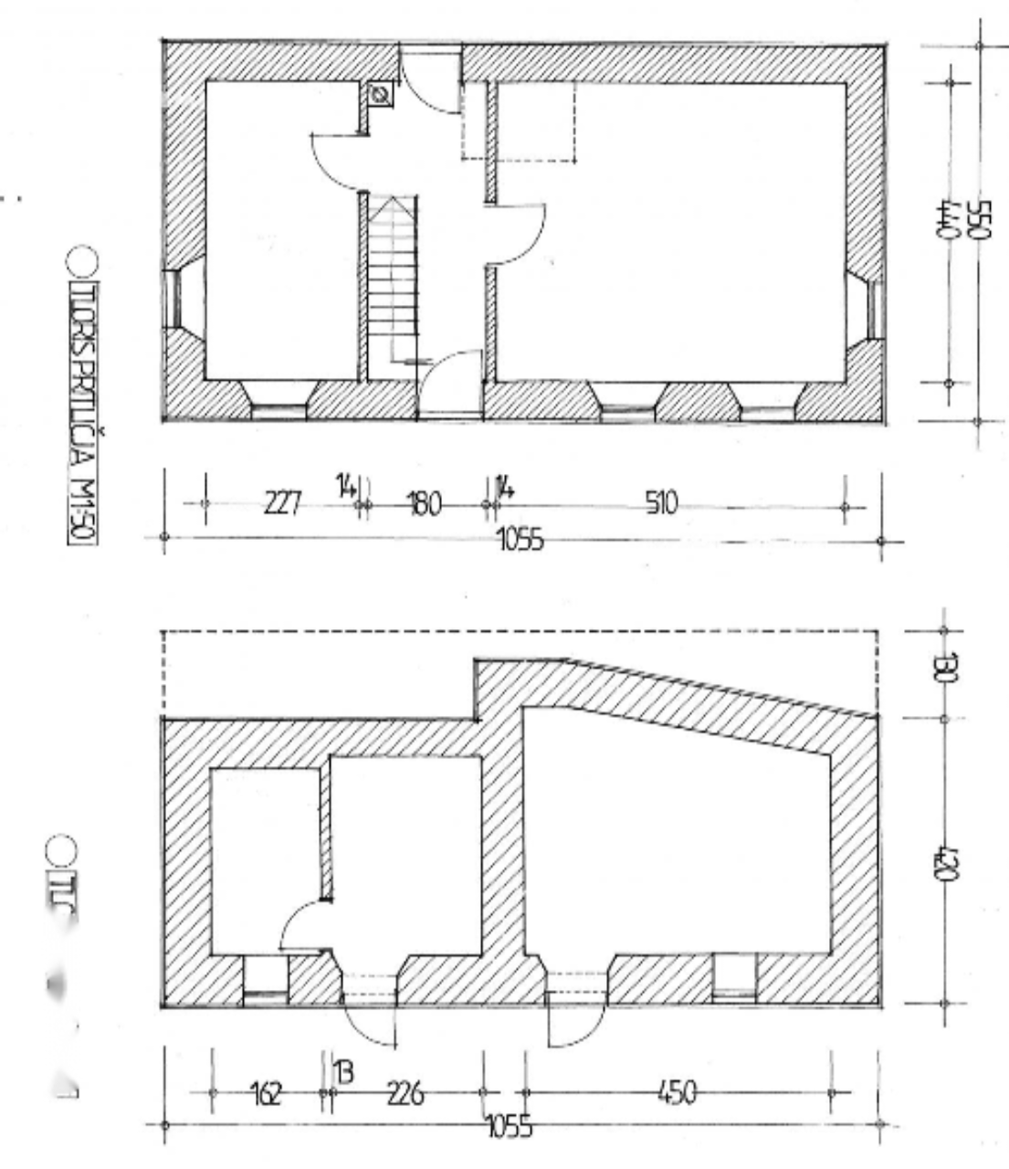
На первом этаже находятся кухня с обеденной зоной (10 м²), коридор (7,9 м²) и объединённая комната с ванной (22,4 м²). В подвале расположены ванная комната (4,4 м²), прихожая (6,6 м²) и кладовая (14,9 м²). Мансарда включает жилое помещение (10 м²) и пространство без ремонта (15 м²).

Дом подключен к водоснабжению, канализации и высокоскоростному интернету через оптику. Основное отопление осуществляется с использованием дров и угля. К объекту прилегает три собственных парковочных места.

Расположение дома чрезвычайно удобно: всего в 180 м находится ближайший магазин, а в 300 м - главная площадь города. В непосредственной близости расположены автобусные остановки и административные учреждения.

  • Размер: 90 м²
  • Количество спален: 1
  • Количество ванных комнат: 2
  • Кладовая
  • Территория: 642 м²
  • Балкон
  • Атриум
  • Парковочное место: 3
  • Отопление на дровах/угле
  • Оптический интернет

Цена: 86 800 евро

О компании

MIRAG CONSULTING D.O.O. — это команда профессионалов с более чем 20-летним опытом. Мы предоставляем полный спектр услуг в области финансового консалтинга, инжиниринга и недвижимости в Словении. Наша команда из более чем 10 экспертов имеет все лицензии и сертификации.
Главные ценности: эффективность, прозрачность, индивидуальный подход.

Mirag Consulting

Контакты

Slovenia, Ljubljana, Likozarjeva ulica 3