Mirag Logo MIRAG CONSULTING D.O.O.
RU | EN

Дома доступные для покупки до € 100 000

Строим ваше будущее в центре Европы

← Назад к каталогу

Дом в Голаце

  • Город: Голац
  • Район: Обално-Крашский
  • Площадь дома: 157 m2
  • Площадь участка: 9420 m2
  • Комнат: 5
  • Спален: 3
  • Ванных: 2
  • Год постройки: 1900
  • Этаж: 2
  • Стоимость: € 54 900

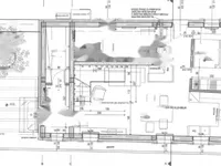
Предлагается уникальная возможность строительства современного одноэтажного дома в живописной словенской деревне Голац. Площадь дома составляет 157 м², а участок — 9.420 м², из которых 216 м² предназначены для строительства. Все документы, включая окончательное разрешение на строительство и оплаченные коммунальные взносы, уже оформлены, что позволяет незамедлительно приступить к строительству.

Дом будет располагаться на участке, площадью 216 м², с предусмотренной слугой доступа к соседнему участку и двумя парковочными местами. Остальная часть земельного участка включает лес, сельскохозяйственные угодья и пастбища, что создает уникальные возможности для самообеспечения.

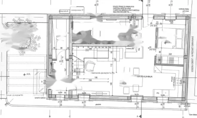
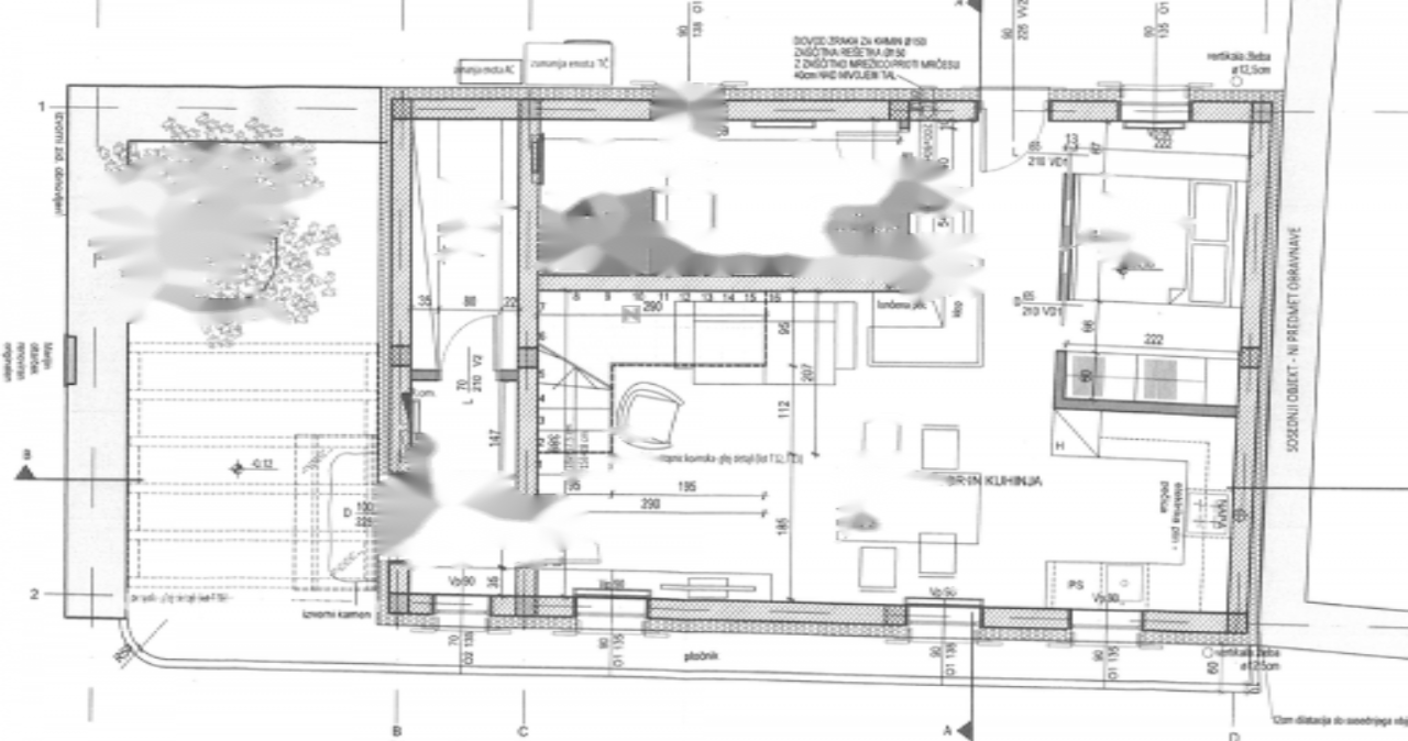
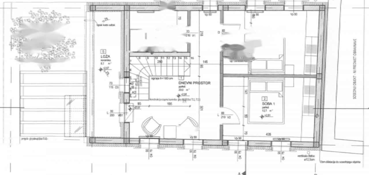
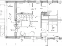
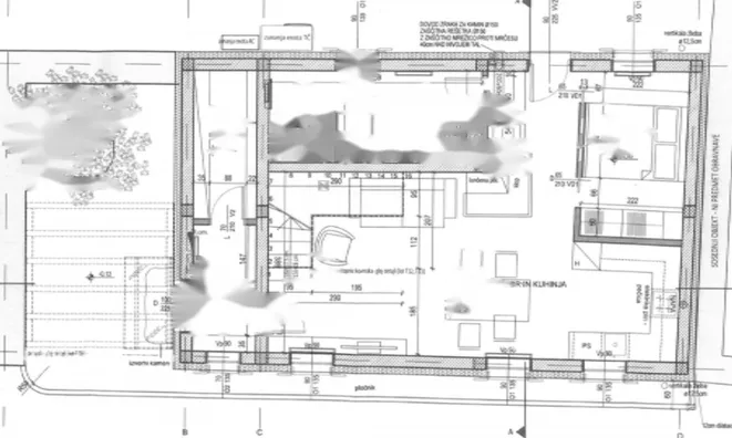
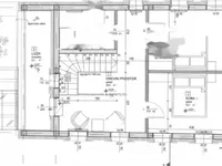
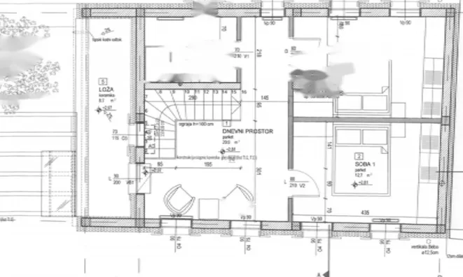
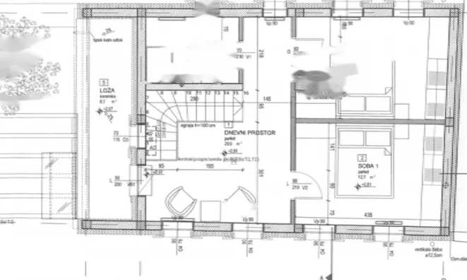
Этажи дома:
Первый этаж (61,1 м²): состоит из прихожей, кладовой, просторной гостиной с кухней, спальни и ванной комнаты с хозяйственной зоной.
Мансарда (60,9 м²): включает дневную зону, две спальни и ванную комнату с выходом на лоджию.

Расположенный в идиллической и тихой деревне Голац, дом окружён природой и идеально подходит для любителей туризма, велосипедных прогулок и отдыха. Близость к источнику воды и лесным тропам добавляет экологическую ценность и возможности для активного отдыха. Недалеко также находится известная «Добрая дом здоровья», привлекающая посетителей из различных регионов.

Характеристики:

  • Общая площадь: 157 м²
  • Этажность: первый этаж + второй этаж
  • Количество спален: 3
  • Количество ванных комнат: 2
  • Площадь земельного участка: 9.420 м²
  • Застроенная площадь: 216 м²
  • Кладовая: 4,4 м² (керамика)
  • Спальня на первом этаже: 7,9 м² (керамика)
  • Зона отдыха мансарды: 20,9 м² (паркет)
  • Энергетический сертификат не требуется (Артикль 31 ZURE)
Цена: 54.900,00 EUR

О компании

MIRAG CONSULTING D.O.O. — это команда профессионалов с более чем 20-летним опытом. Мы предоставляем полный спектр услуг в области финансового консалтинга, инжиниринга и недвижимости в Словении. Наша команда из более чем 10 экспертов имеет все лицензии и сертификации.
Главные ценности: эффективность, прозрачность, индивидуальный подход.

Mirag Consulting

Контакты

Slovenia, Ljubljana, Likozarjeva ulica 3