Mirag Logo MIRAG CONSULTING D.O.O.
RU | EN

Земельные участки на продажу в Словении

Строим ваше будущее в центре Европы

← Назад к каталогу

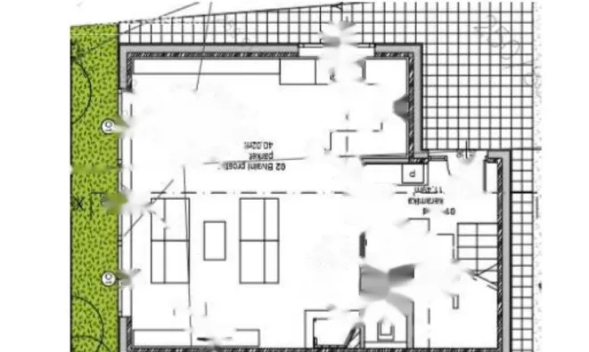
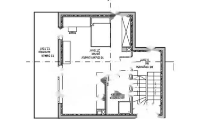
Участок жилой застройки на Улице Лодочников

  • Город: Любляна
  • Район: Трново
  • Площадь участка: 156 m2
  • Стоимость: € 275 000

Объект расположен в районе Трново, предназначен для строительства. Общая площадь участка составляет 156 м². Для объекта выдано разрешение на строительство, на участке уже установлена фундаментная плита. Земля находится в элитном районе недалеко от реки Любляницы в Любляне.

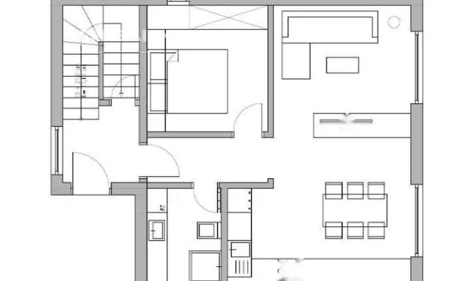
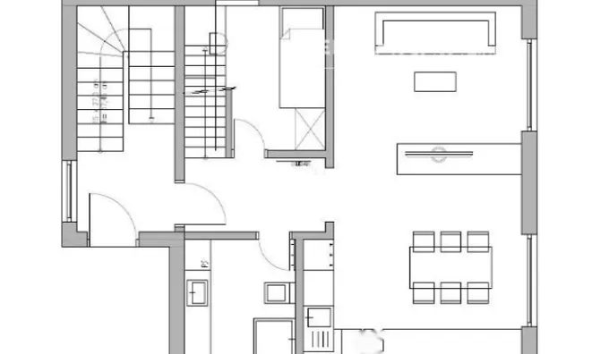
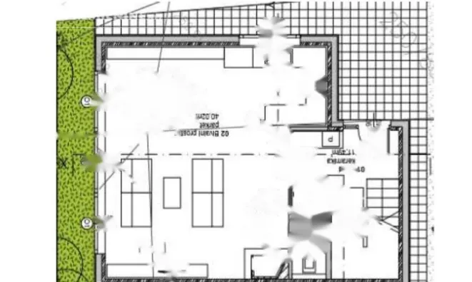
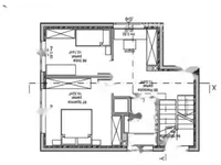
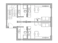
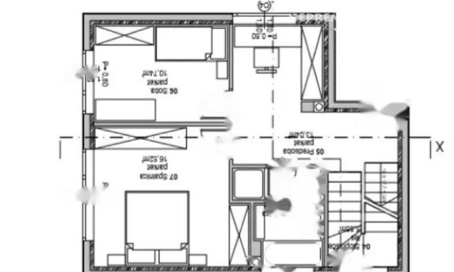
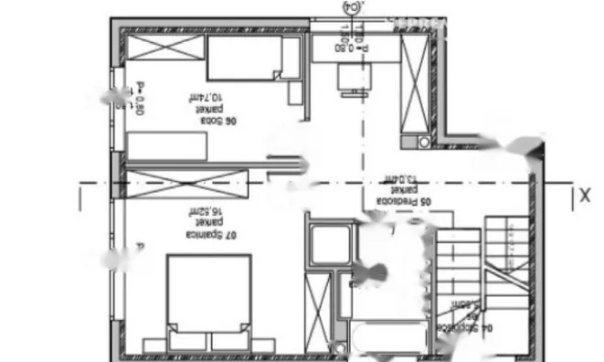
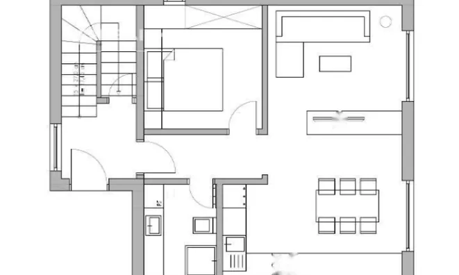
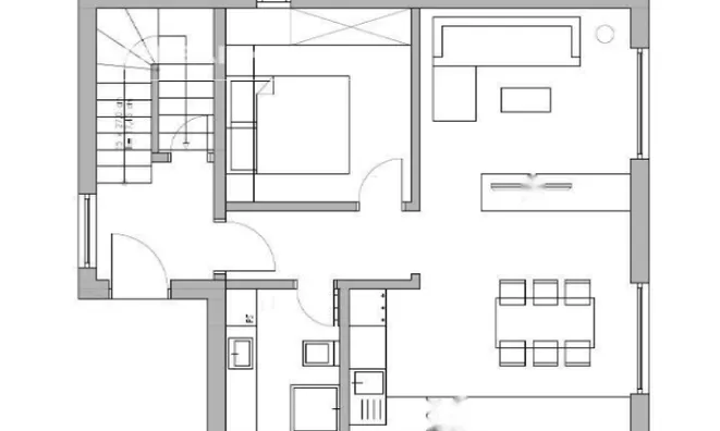
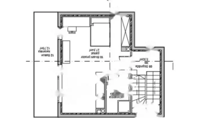
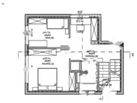
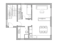
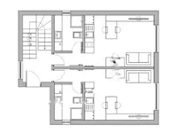
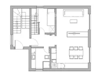
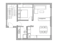
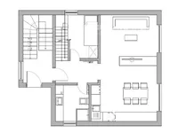
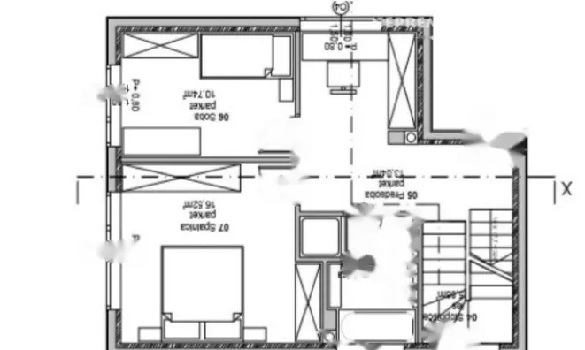
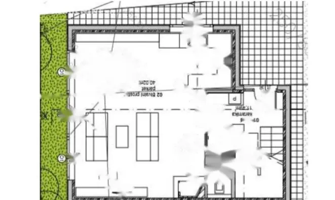
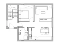
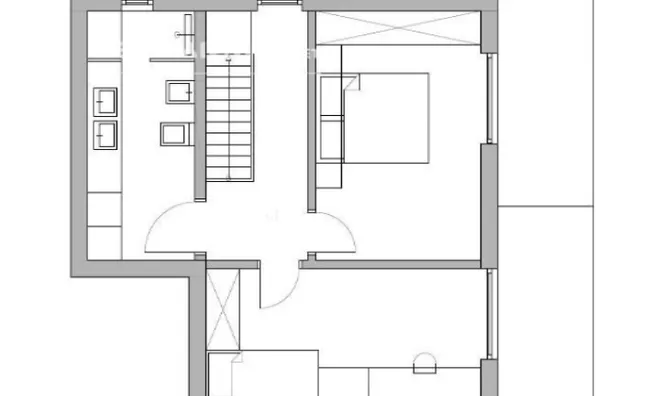
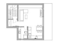
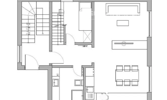
Архитектурное решение предусматривает строительство небольшого здания в форме куба с размерами строительной площадки 9,3x7,5 м. Участок располагается на тихой тупиковой улице с открытым видом на реку на юге. Объект имеет гибкие варианты проектирования: возможна реализация как одно- или двухквартирного дома, так и нескольких небольших единиц для сдачи в аренду. Представлены концептуальные эскизы возможных решений.

Инженерная готовность включает наличие фундаментной плиты, что значительно ускоряет процесс дальнейшего строительства. Юридическое состояние участка позволяет приступить к строительным работам без задержек, так как все разрешительные документы уже получены.

Расположение в Трново предоставляет доступ к развитой инфраструктуре района. Район тихий и уютный, с быстрым доступом к центру города. В непосредственной близости расположены общественный транспорт, торговые и развлекательные заведения.

  • Общая площадь участка: 156 м²
  • Выданное разрешение на строительство
  • Установлена фундаментная плита
  • Элитное расположение вблизи реки
  • Возможность гибкого проектирования и использования объекта
  • Развитая инфраструктура района

Инвестиционная привлекательность участка оценивается на уровне 8 из 10 благодаря его расположению, юридической чистоте и перспективам использования. Участок подходит для разнообразных строительных проектов, как для собственного проживания, так и для коммерческого использования.

Итоговая стоимость объекта составляет 275 000,00 € .

О компании

MIRAG CONSULTING D.O.O. — это команда профессионалов с более чем 20-летним опытом. Мы предоставляем полный спектр услуг в области финансового консалтинга, инжиниринга и недвижимости в Словении. Наша команда из более чем 10 экспертов имеет все лицензии и сертификации.
Главные ценности: эффективность, прозрачность, индивидуальный подход.

Mirag Consulting

Контакты

Slovenia, Ljubljana, Likozarjeva ulica 3