Mirag Logo MIRAG CONSULTING D.O.O.

Земельные участки на продажу в Словении

Строим ваше будущее в центре Европы

← Назад к каталогу

Участок застройки в Бледе с проектом

  • Город: Блед
  • Район: Гореньска
  • Площадь участка: 608 м2
  • Стоимость: € 415 000

Продается земельный участок жилого назначения площадью 608 м² в новом поселке Коритно, неподалеку от озера Блед. Участок подготовлен для немедленного начала строительства современной надстандартной жилой недвижимости. Денежные средства на оплату коммунальных услуг уже внесены, общая стоимость объекта составляет 415,000.00 €.

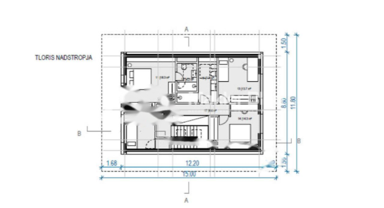
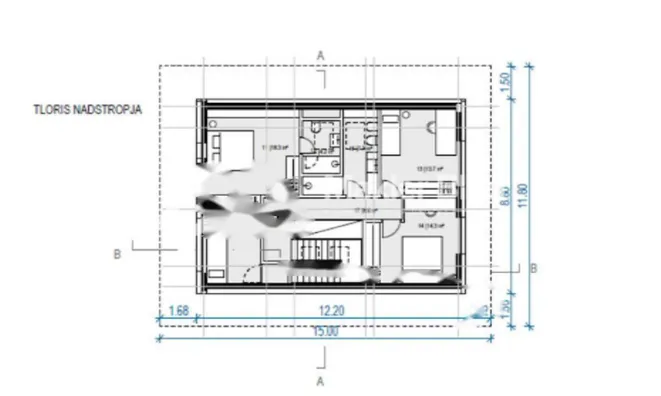
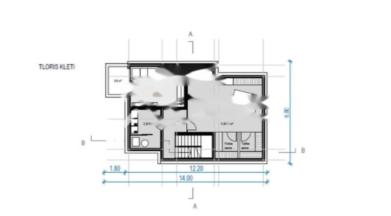
Архитектурное решение предполагает строительство современной альпийской резиденции с полностью разработанной 3D визуализацией экстерьера и интерьеров. Дом будет включать открытые пространства с галереей над жилыми помещениями и предлагает все современные удобства, включая:

  • Площадь жилого дома: 221,90 м²
  • Келлерный этаж: туристическая/фитнес-комната - 12,41 м², хозяйственная комната - 8,46 м², велнес-зона с двумя саунами, джакузи и санузлом - 41,11 м², WC - 3,19 м², коридор - 6,16 м². Всего: 71,32 м²
  • Первый этаж: жилая зона - 62,01 м², холл - 6,65 м², WC - 1,79 м², кладовая - 3,88 м². Всего: 74,34 м²
  • Второй этаж: спальня с ванной комнатой - 18,26 м² и 4,16 м², комната 1 - 13,73 м², комната 2 - 14,25 м², комната 3 - 9,57 м², ванная комната - 7,66 м², галерея - 8,61 м². Всего: 76,24 м²
  • Внешний бассейн: 30,00 м² (8,10 м x 3,70 м)
  • Садовый домик: 8,80 м²
  • Навес для парковки: 40,00 м²

Участок расположен в зоне согласованного муниципального детального планирования (Коритно ЗН - полоса S2). Инженерная готовность объекта включает в себя подключение к водоснабжению, электросети, канализации и телекоммуникациям. Внутренние дороги поселка обустроены и асфальтированы.

Юридически участок оформлен с правом возведения постройки, обеспечен полным пакетом документов, включая действующее разрешение на строительство. Расположение близ озера Блед создает прекрасные условия для жизни: зеленый и спокойный район с развитой инфраструктурой и возможностью комфортного проживания.

Инвестиционная привлекательность объекта - 8 из 10, в виду уникального расположения и наличия всех разрешительных документов для скорейшего старта строительства.

Полная стоимость объекта составляет 415,000.00 € .

О компании

MIRAG CONSULTING D.O.O. — это команда профессионалов с более чем 20-летним опытом. Мы предоставляем полный спектр услуг в области финансового консалтинга, инжиниринга и недвижимости в Словении. Наша команда из более чем 10 экспертов имеет все лицензии и сертификации.
Главные ценности: эффективность, прозрачность, индивидуальный подход.

Mirag Consulting

Контакты

Slovenia, Ljubljana, Likozarjeva ulica 3