Mirag Logo MIRAG CONSULTING D.O.O.
RU | EN

Дома доступные для покупки в Любляне

Строим ваше будущее в центре Европы

← Назад к каталогу

Дом с террасой Тацен

  • Город: Любляна
  • Район: Тацен
  • Площадь дома: 288 m2
  • Комнат: 5
  • Спален: 3
  • Ванных: 2
  • Год постройки: 2025
  • Этаж: 2
  • Стоимость: € 650 000

Инфраструктура: фитнес-центр, охраняемая территория

Представляем вашему вниманию новый дом с террасой площадью 288,3 м² на живописной и спокойной локации у подножия Шмарной Горы. Строительство начнется в первом квартале 2025 года. Дом выполнен с учётом всех современных стандартов и архитектурных решений, что позволяет новосёлам насладиться комфортом и высоким качеством жизни.

Удачное расположение предоставляет возможность быстро добраться как до центра города, так и до автомагистрали. В непосредственной близости находятся зоны отдыха и школа, что делает объект идеальным для семейного проживания. Солнечная ориентация дома и зелёные окрестности создают атмосферу уединённости и спокойствия.

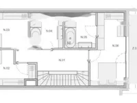
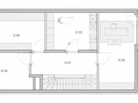
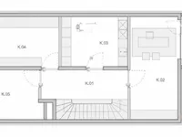
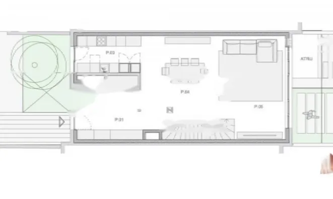
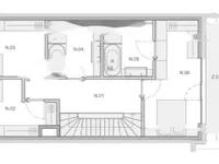
Жилые метры распределены по подвалу, первому и второму этажам. Подвал вмещает утилитарные помещения, кладовую, многофункциональную зону и машинное отделение. Первый этаж предназначен для просторной кухни, светлой гостиной с обеденной зоной и гостевого санузла. Второй этаж включает в себя главную спальню с гардеробной и собственным санузлом, две дополнительные комнаты и ещё одну ванную комнату.

️ Дом является частью закрытого комплекса, все дома которого выполнены в современном стиле из высококачественных натуральных материалов. Фасад облицован кирпичом и классической штукатуркой, что придаёт ему элегантность и прочность. Деревянные трёхслойные окна обеспечивают отличную тепло- и звукоизоляцию.

Завершение строительства подразумевает готовые внешние и конструктивные внутренние элементы, что позволяет будущим владельцам выбрать собственный стиль отделки. Возможно полное завершение дома "под ключ" в течение трёх месяцев после подписания договора. Просторная терраса и компактный атриум позволяют наслаждаться природой, не покидая дом.

  • Общая площадь: 288,3 м²
  • Жилая площадь: 224,85 м²
  • Этажность: Подвал + Первый этаж + Второй этаж
  • Количество спален: 3
  • Количество ванных комнат: 2
  • Площадь террасы: 29 м²
  • Площадь парковочного места: 25 м²
  • Площадь атриума: 9 м²
  • Ориентация: Восток – Запад

Цена: 650,000 EUR

О компании

MIRAG CONSULTING D.O.O. — это команда профессионалов с более чем 20-летним опытом. Мы предоставляем полный спектр услуг в области финансового консалтинга, инжиниринга и недвижимости в Словении. Наша команда из более чем 10 экспертов имеет все лицензии и сертификации.
Главные ценности: эффективность, прозрачность, индивидуальный подход.

Mirag Consulting

Контакты

Slovenia, Ljubljana, Likozarjeva ulica 3