Mirag Logo MIRAG CONSULTING D.O.O.
RU | EN

Дома доступные для покупки в Любляне

Строим ваше будущее в центре Европы

← Назад к каталогу

Дом с террасой Новая Любляна рядом с парком Тиволи

  • Город: Любляна
  • Район: Шишка
  • Площадь дома: 186 m2
  • Площадь участка: 182 m2
  • Комнат: 6
  • Спален: 4
  • Ванных: 2
  • Год постройки: 2026
  • Этаж: 3
  • Стоимость: € 995 000

Прекрасный современный дом с террасой в районе Шишка, Любляна, предлагает уникальную возможность приобрести жилье рядом с парком Тиволи, идеальным местом для отдыха и активного образа жизни. Расположенный в новом жилом районе в Нижней Шишке, этот дом отличает удобное местоположение: шаговая доступность до школ, детских садов и общественного транспорта, а также близость к основным автомагистралям и центру города.

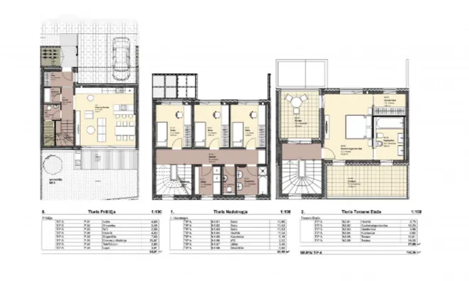
Планировка включает подвал и три жилых уровня с хорошо организованными пространствами:

  • Первый этаж: прихожая, кладовая, гостевой туалет, просторная гостиная с кухней, техническое помещение и сарай.
  • Второй этаж: три комнаты, ванная комната, туалет и подсобное помещение.
  • Третий этаж: спальня, гардеробная, ванная комната и две террасы.

Технические характеристики включают:

  • Площадь: 186,36 м²
  • Площадь участка: 182 м²
  • Четыре спальни и две ванных комнаты
  • Отдельный туалет
  • Собственные парковочные места на две машины
  • Терраса
  • Напольное отопление
  • Тепловой насос
  • Кондиционер
  • Класс энергоэффективности: A1 (0 - 10 кВтч/м²а)
  • Противовзломные двери
  • Современная архитектура с большим количеством естественного света

Планируется завершение строительства к концу 2026 года. Пятую строительную фазу можно доработать до ключа по договоренности. Эти апартаменты идеально подойдут для тех, кто стремится к уюту и комфорту в активной городской среде.

Цена: 995 000 EUR

О компании

MIRAG CONSULTING D.O.O. — это команда профессионалов с более чем 20-летним опытом. Мы предоставляем полный спектр услуг в области финансового консалтинга, инжиниринга и недвижимости в Словении. Наша команда из более чем 10 экспертов имеет все лицензии и сертификации.
Главные ценности: эффективность, прозрачность, индивидуальный подход.

Mirag Consulting

Контакты

Slovenia, Ljubljana, Likozarjeva ulica 3