Mirag Logo MIRAG CONSULTING D.O.O.
RU | EN

Дома у моря доступные для покупки в Словении

Строим ваше будущее в центре Европы

← Назад к каталогу

Дуплекс Ново Гриньян

  • Город: Любляна
  • Район: Южная Приморская
  • Площадь дома: 129 m2
  • Площадь участка: 351 m2
  • Комнат: 8
  • Спален: 5
  • Ванных: 2
  • Год постройки: 2022
  • Этаж: 2
  • Стоимость: € 629 000

Представляем вашему вниманию современный дом в уютном районе Гриньян, неподалёку от города Копер. Это двухэтажный дом, построенный в 2022 году, занимает площадь 128,5 м² и располагается на участке 351 м².

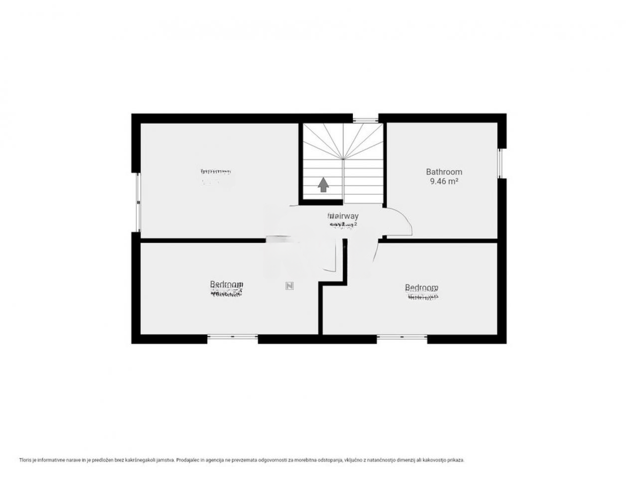
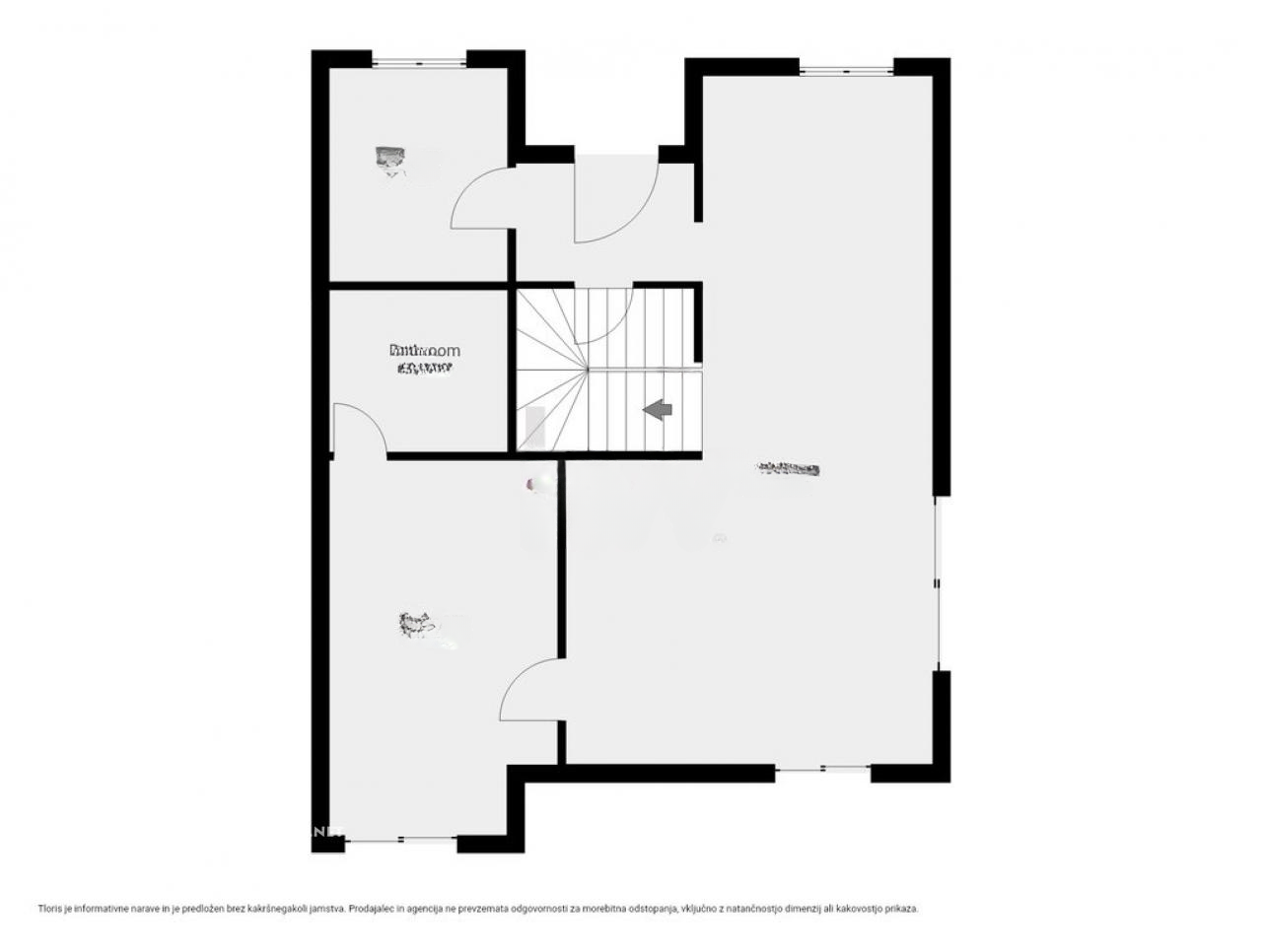
Дом предлагает комфортное проживание для семьи. На первом этаже расположены прихожая, техническое помещение, небольшая комната, которая может быть использована как кабинет или кладовая, кухня с обеденной зоной и просторная гостиная с выходом на террасу. Также на этом уровне находятся спальня с выходом в сад и собственная ванная комната. Второй этаж включает большую ванную комнату, спальню и две детские комнаты. Большие стеклянные окна обеспечивают достаточное естественное освещение.

Участок предлагает возможность отдыха на свежем воздухе с красивым видом на Копер и возможностью обустройства сада. Место также отлично подходит для содержания домашних животных благодаря ограждённой территории.

Дом оснащён современной системой отопления с помощью электрического пола и кондиционеров, которые обеспечивают комфорт в любое время года. Категория энергоэффективности – B1 (15 - 25 кВтч/м² в год).

Расположенный всего в нескольких километрах от Копера, дом обеспечивает удобный доступ к основным объектам инфраструктуры, включая детские сады и школы, которые находятся в пределах 5 км.

  • Площадь дома: 128,5 м²
  • Этажность: первый этаж + второй этаж
  • Спальни: 5
  • Ванные комнаты: 2
  • Площадь участка: 351 м²
  • Парковочное место
  • Терраса
  • Электропол с подогревом
  • Кондиционеры
  • Категория энергоэффективности: B1
  • Отопление: электричество и кондиционеры

Цена: 629 000 EUR

О компании

MIRAG CONSULTING D.O.O. — это команда профессионалов с более чем 20-летним опытом. Мы предоставляем полный спектр услуг в области финансового консалтинга, инжиниринга и недвижимости в Словении. Наша команда из более чем 10 экспертов имеет все лицензии и сертификации.
Главные ценности: эффективность, прозрачность, индивидуальный подход.

Mirag Consulting

Контакты

Slovenia, Ljubljana, Likozarjeva ulica 3