Mirag Logo MIRAG CONSULTING D.O.O.

Квартиры доступные для покупки на Мальте

Строим ваше будущее в центре Европы

← Назад к каталогу

St. Noto View Apartment

  • Город: Noto
  • Район: Siracusa
  • Площадь дома: 800 м2
  • Спален: 9
  • Ванных: 6
  • Стоимость: € 560 000

Дополнительные свойства: Вид на море
Инфраструктура: охраняемая территория

Bedrooms: 9, Bathrooms: 6, Inside Area: 400 sqm, Outside Area: 400 sqm, Plot Area: 800 sqm;

  • ✓ Coming available on: Available now
  • ✓ Type: Block of Apartments

Имущество, в настоящее время используемое в качестве гостиничного заведения, находится в городе Ното, в 900 метрах от пляжа и в 1200 метрах от Площади Лидо ди Ното. Район обеспечен супермаркетами, барами, табачными магазинами и основными сервисами, всего в 1000 метрах от выезда на автомагистраль. Объект расположен в тихой и спокойной зоне.

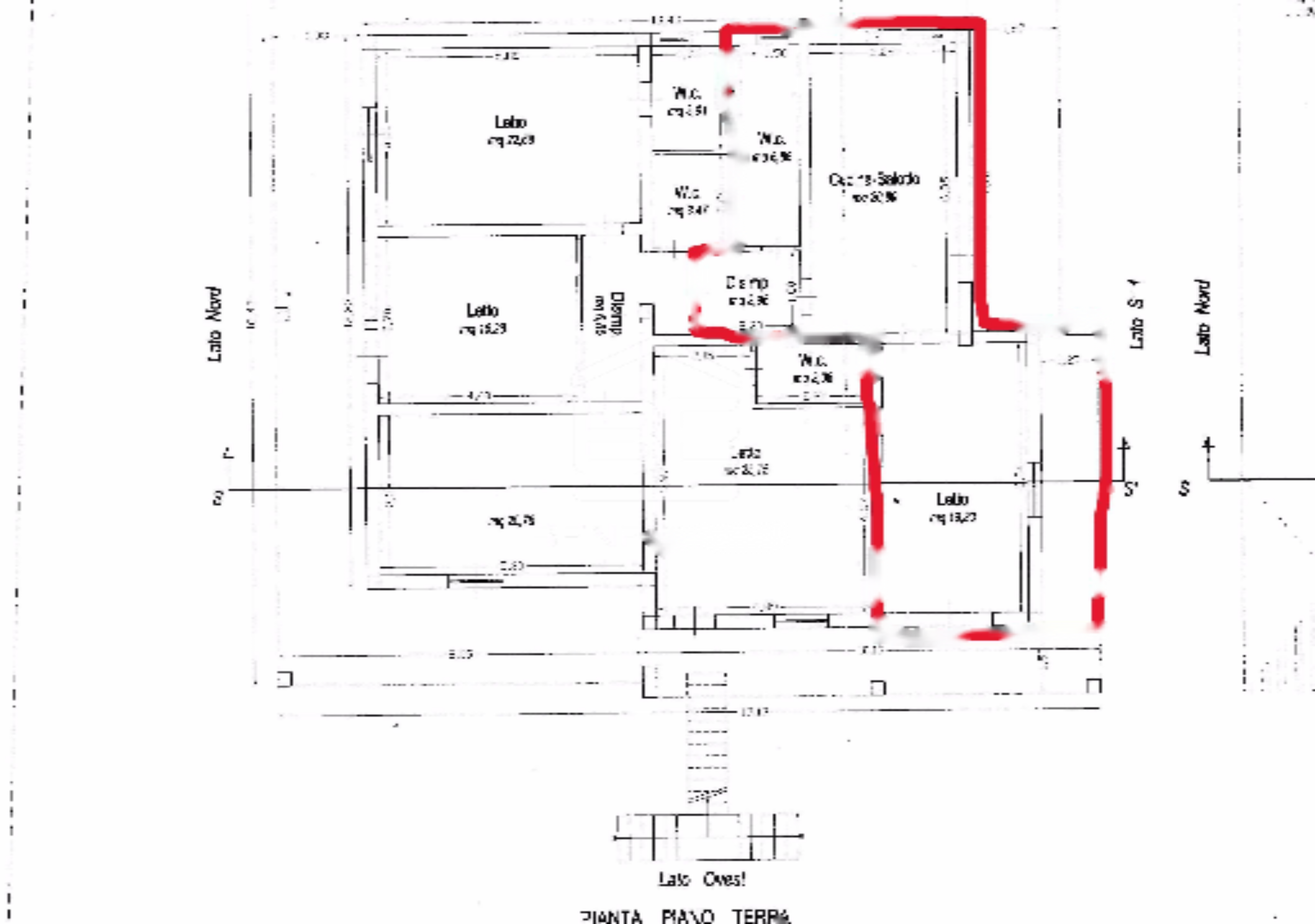
Общая площадь вместе с внешними пространствами составляет около 800 кв. м, включая участок дороги перед собственностью. Доступ осуществляется через частную дорогу, на которую имеют право доступа 15 владельцев-резидентов. Здание имеет два этажа: на первом этаже расположены 5 комнат, 2 кухни, 3 холла, 4 ванные комнаты, 3 внешние кладовые, гараж и 2 деревянные веранды, окружающие здание.

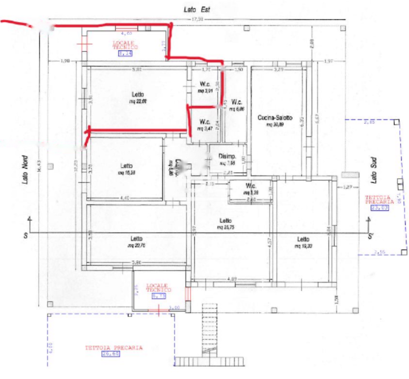
На втором этаже расположены 2 квартиры, каждая около 90 кв. м, с верандами и видом на море. С левой стороны - 2 спальни, 1 ванная комната, дополнительный санузел, кладовая и гостиная с кухней, а также панорамные веранды с видом на море в сторону района Калабернардо, рыбацкого поселка. С правой стороны - 2 спальни, холл, ванная, кладовая, кухня-гостиная и панорамные веранды с видом на море.

Оконные рамы новые с термическим разрывом. Имущество оснащено механизированными раздвижными воротами с деревянным навесом площадью около 38 кв. м и снабжено камерами видеонаблюдения и частной охраной на протяжении всего года. Ухоженный сад с деревьями и растениями имеет автоматизированную систему полива. Кроме того, есть встроенная печь.

Область обиталась круглый год. Все комнаты первого этажа оснащены кондиционерами с тепловыми насосами и способны комфортно разместить до 16-18 человек, в то время как на втором этаже можно разместить около 8-10 человек. Водоснабжение обеспечивается через консорциум с регулярным контрактом, горячая вода - через электрический и газовый водонагреватели с солнечными панелями, а также с индивидуальными насосами для каждого этажа.

Во всех комнатах установлен телевизионный сигнал, и предусмотрена возможность подключения телефонной линии. На чердаке установлены солнечные панели. Две мансарды на втором этаже имеют общую только лестницу для доступа, а электрические и водопроводные системы независимы.

Площадь первого этажа и второго этажа составляет 400 кв. м. Имущество предлагает все удобства, которые может подарить дом - от внутренних пространств до парковки. Это является отличным инвестиционным вложением в гостиничный сектор благодаря близости к морю. Географическое расположение способствует легкому перемещению к другим туристическим достопримечательностям, таким как Ното, Сиракуза и Марзамеми, а также всего в 30 минутах от порта Поццалло.

О компании

MIRAG CONSULTING D.O.O. — это команда профессионалов с более чем 20-летним опытом. Мы предоставляем полный спектр услуг в области финансового консалтинга, инжиниринга и недвижимости в Словении. Наша команда из более чем 10 экспертов имеет все лицензии и сертификации.
Главные ценности: эффективность, прозрачность, индивидуальный подход.

Mirag Consulting

Контакты

Slovenia, Ljubljana, Likozarjeva ulica 3