Mirag Logo MIRAG CONSULTING D.O.O.

Дома и квартиры доступные для покупки в Андорре

Строим ваше будущее в центре Европы

← Назад к каталогу

3-bedroom apartment available in 2027

  • Город: Andorra
  • Район: Andorra la Vella
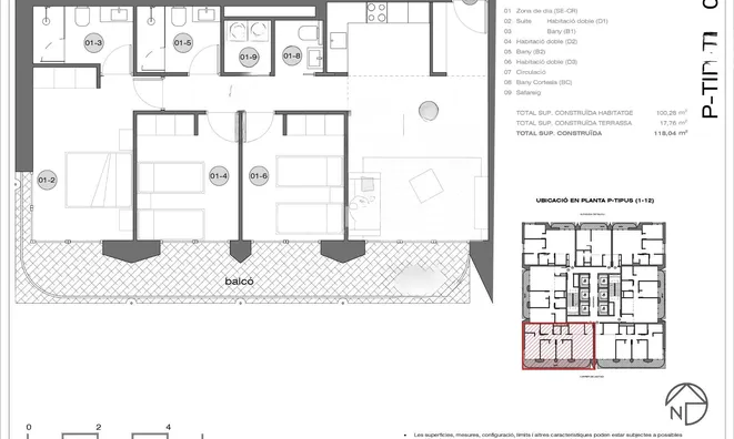
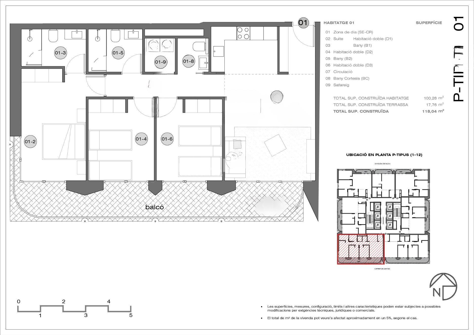
  • Площадь дома: 118 м2
  • Спален: 3
  • Ванных: 2
  • Стоимость: € 644 000

118 m 2; 3 Habitacions; 2 Banys; No Inclòs;

Эксклюзивная новая постройка расположена всего в 500 метрах от центра Андорра-ла-Вельи и ее основного торгового района. Здание на 14 этажей планируется завершить к декабрю 2027 года. Оно предложит современную, комфортную и функциональную среду с зелеными зонами и площадкой для паддл-тенниса.

Жилье отличается современным дизайном, энергоэффективностью класса A и использованием материалов высшего качества. Во всех квартирах есть внешнее пространство с практичными балконами или террасами, а тщательная ориентация гарантирует естественный свет и тепловой комфорт круглый год.

Основные характеристики: структура и фасад представляют собой систему из сборного бетона и вентилируемый фасад с керамической отделкой, имитирующей бетон и технологическое дерево, что обеспечивает элегантность и долговечность. Внешняя столярка из алюминия или ПВХ с терморазрывом и тройным остеклением обеспечивает отличную тепло- и звукоизоляцию.

Климатическая установка с системой радиаторного охлаждения-подогрева и производством горячей воды через сеть FEDA Ecoterm, обеспечивающая максимальную эффективность и комфорт. Установка для умного дома уже предусмотрена, а в гостиной установлены моторизованные затемняющие шторы. Светодиодные светильники в кухнях, ванных и общественных зонах. Предусмотрена установка для зарядки электротранспорта на парковочных местах.

Внутренняя отделка включает в себя SPC-пол Grat и противоскользящую керамическую плитку на балконах и террасах. Кухни полностью оборудованы мебелью MOBALPA или аналогичной, столешницей CERATOP или аналогичной, и бытовой техникой SIEMENS или аналогичной. Ванные комнаты оборудованы подвесной мебелью, термостатическими миксерами и душевыми поддонами из смолы с экранами. Установлены бронированная входная дверь и лакированные межкомнатные двери.

Благодаря конструктивной проработке, продвинутой изоляции и современным энергетическим системам, здание получает высшую оценку энергетической эффективности A, снижая потребление и воздействие на окружающую среду.

Эта квартира площадью 100 м2 находится на первом этаже и имеет балкон площадью 18 м2 с южной ориентацией, обеспечивая солнечное освещение в течение всего дня. Она включает в себя: вход с шкафом, просторную гостиную, оборудованную кухню, гостевой туалет, функциональную прачечную, полную ванную комнату, две просторные спальни с встроенными шкафами, а также главную спальню с гардеробом и собственной ванной. Выход на балкон возможен из любого помещения. Доступна возможность приобретения двух парковочных мест и кладовки.

О компании

MIRAG CONSULTING D.O.O. — это команда профессионалов с более чем 20-летним опытом. Мы предоставляем полный спектр услуг в области финансового консалтинга, инжиниринга и недвижимости в Словении. Наша команда из более чем 10 экспертов имеет все лицензии и сертификации.
Главные ценности: эффективность, прозрачность, индивидуальный подход.

Mirag Consulting

Контакты

Slovenia, Ljubljana, Likozarjeva ulica 3