Mirag Logo MIRAG CONSULTING D.O.O.
RU | EN

Дома доступные для покупки в Любляне

Строим ваше будущее в центре Европы

← Назад к каталогу

Дом с террасой Новая Шишка

  • Город: Любляна
  • Район: Шишка
  • Площадь дома: 186 m2
  • Площадь участка: 234 m2
  • Комнат: 5
  • Спален: 4
  • Ванных: 2
  • Год постройки: 2026
  • Этаж: 3
  • Стоимость: € 1 100 000

Представляем вашему вниманию современный дом с террасой, расположенный в спокойном районе Нижняя Шишка. Этот дом предлагает рациональную планировку, соответствующую современному стилю жизни, и находится в шаговой доступности от парка Тиволи. Основная школа Нижняя Шишка находится всего в трёх минутах ходьбы, детский сад — в шести, а до остановки общественного транспорта можно дойти за семь минут.

Дом имеет общую площадь 186,36 м² и расположен на участке в 234 м². Встроенные системы климат-контроля и отопления с помощью теплового насоса обеспечивают комфортное проживание. Предусмотрены два собственных парковочных места и просторные террасы для отдыха.

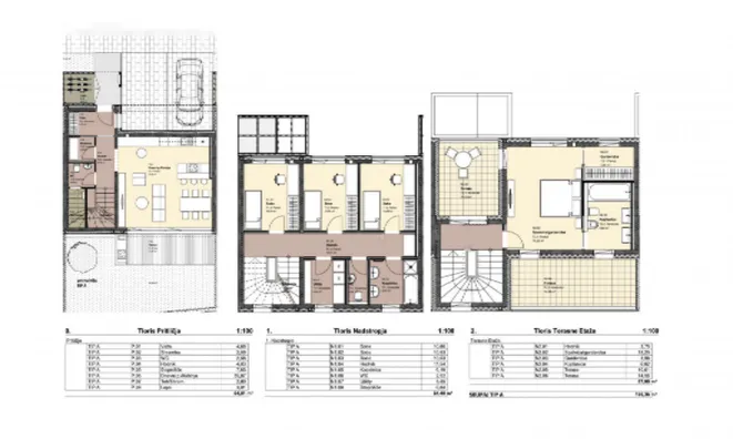
Распределение этажей:

  • Первый этаж: прихожая, кладовая, туалет, просторная гостиная с кухней, техническое помещение, сарай.
  • Второй этаж: три спальни, ванная комната, туалет, прачечная.
  • Третий этаж: спальня с гардеробной, ванная комната, две просторные террасы.

Дом оснащён современными решениями: трёхслойные окна, качественная изоляция, противовзломные двери. Энергоэффективность на высшем уровне (A1, 0 - 10 кВтч/м² в год).

Этот дом идеально подходит для семей благодаря близости к школам, детскому саду и рекреационным зонам. До центра города и выезда на автомагистраль можно быстро добраться на автомобиле.

  • Площадь: 186,36 м²
  • Этажи: первый этаж + два верхних этажа
  • Количество спален: 4
  • Количество ванных комнат: 2
  • Кладовая
  • Отдельный туалет
  • Участок: 234,00 м²
  • Атриум
  • Два собственных парковочных места
  • Терраса
  • Тёплые полы
  • Тепловой насос
  • Кондиционер
  • Противовзломные двери

Цена: 1 100 000,00 €

О компании

MIRAG CONSULTING D.O.O. — это команда профессионалов с более чем 20-летним опытом. Мы предоставляем полный спектр услуг в области финансового консалтинга, инжиниринга и недвижимости в Словении. Наша команда из более чем 10 экспертов имеет все лицензии и сертификации.
Главные ценности: эффективность, прозрачность, индивидуальный подход.

Mirag Consulting

Контакты

Slovenia, Ljubljana, Likozarjeva ulica 3