Mirag Logo MIRAG CONSULTING D.O.O.

Офисы на продажу в Любляне

Строим ваше будущее в центре Европы

← Назад к каталогу

Коммерческое помещение Чрнуче

  • Город: Любляна
  • Район: Чрнуче
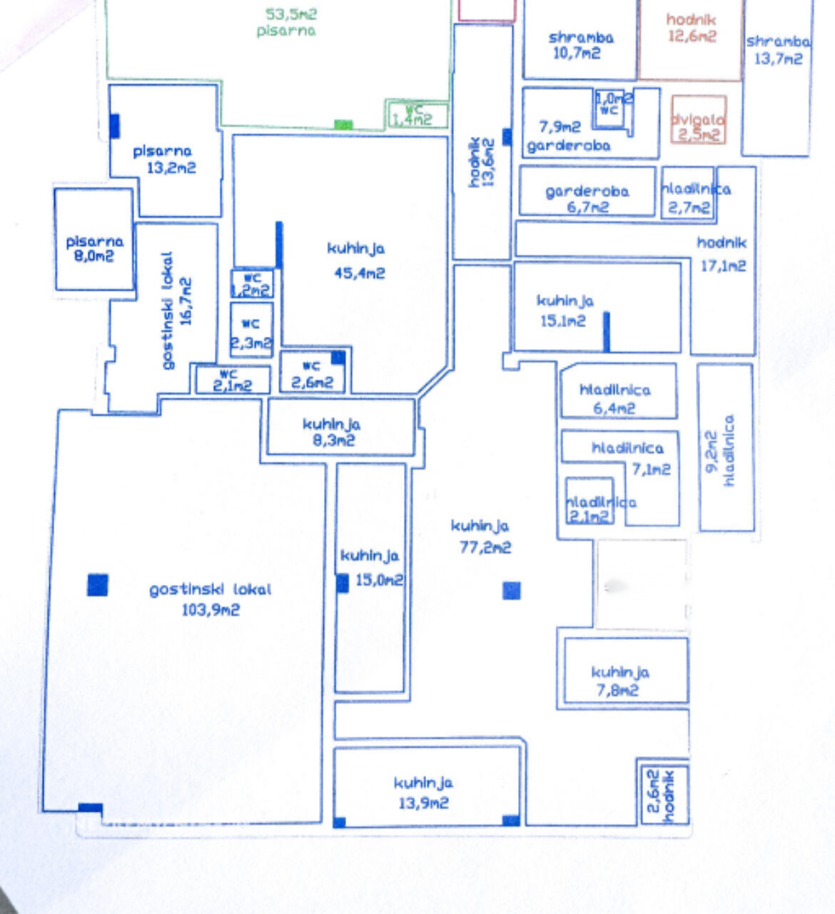
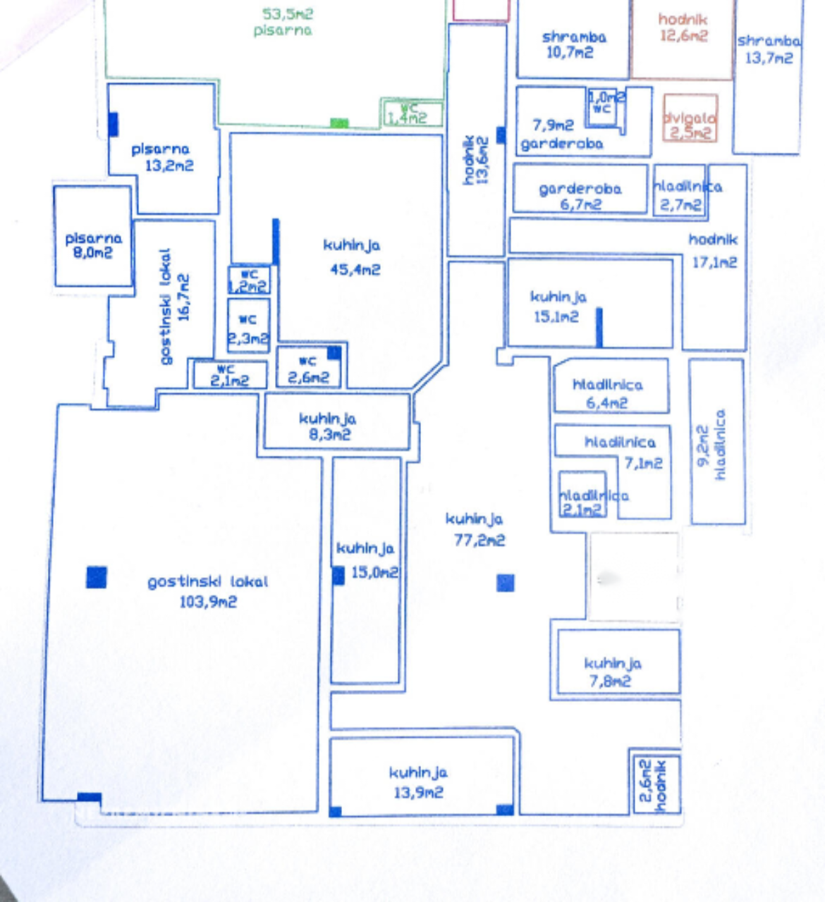
  • Площадь дома: 573 м2
  • Площадь участка: 435 м2
  • Год постройки: 1985
  • Стоимость: € 995 000

Инфраструктура: магазины, медучреждения

Предлагаем к продаже многофункциональное коммерческое или производственное помещение площадью 573 м², расположенное на улице Брынчичева в районе Чрнуче, Любляна. Объект построен в 1985 году и полностью адаптирован в 2021 году. Общая площадь земельного участка составляет 435 м².

Пространство находится на первом этаже и отличается гибкой планировкой благодаря конструкции на колоннах. Это позволяет оставить открытый план или разделить помещение на меньшие секции в соответствии с желанием покупателя. В связи с этим объект подходит для следующих видов деятельности:

  • Медицинская и оздоровительная сферы
  • Торговля или выставочный зал
  • Офисы или локальный бизнес
  • Склад временного хранения или небольшое производство

Архитектурные особенности включают большие витринные окна, идеально подходящие для выставочных или торговых помещений. Удобное транспортное сообщение позволяет быстро добраться до городской окружной дороги и автомагистралей. Парковка предусмотрена непосредственно перед объектом, также есть дополнительный доступ для доставки.

Объект находится в отличном состоянии, с высотой потолков 4 метра и возможностью немедленного вступления во владение. Юридическое состояние полностью урегулировано и свободно от обременений.

Ключевые технические характеристики:

  • Общая полезная площадь: 573 м²
  • Внутреннее пространство в здании: 400 м²
  • Дополнительное складское помещение: 173 м²
  • Внешняя площадь участка: 435 м² (включая 160 м² террасы)
  • Класс энергоэффективности: С (35 - 60 кВт·ч/м²·год)

Объект предлагает отличные инвестиционные перспективы с высокой гибкостью использования, возможностью быстрой адаптации под разнообразные бизнес-задачи и хорошей транспортной доступностью. Уровень инвестиционной привлекательности оценивается в 8 из 10 по шкале.

Цена: 995 000,00 EUR (дополнительно необходимо уплатить налог на продажу недвижимости в размере 2%).

О компании

MIRAG CONSULTING D.O.O. — это команда профессионалов с более чем 20-летним опытом. Мы предоставляем полный спектр услуг в области финансового консалтинга, инжиниринга и недвижимости в Словении. Наша команда из более чем 10 экспертов имеет все лицензии и сертификации.
Главные ценности: эффективность, прозрачность, индивидуальный подход.

Mirag Consulting

Контакты

Slovenia, Ljubljana, Likozarjeva ulica 3